22/30
Paylaş
Resmi Orjinal Boyutunda Göster
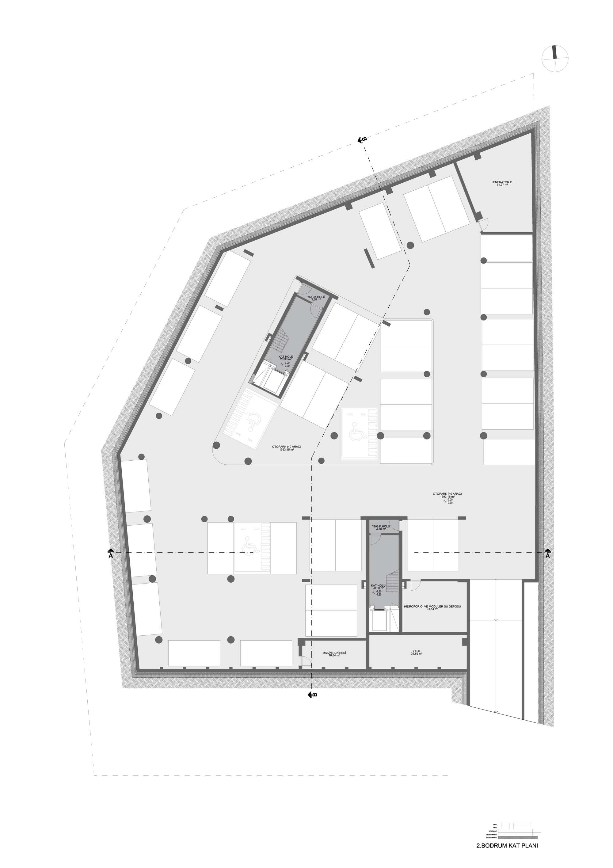
Beylikdüzü Çiftlik Park
Proje Yeri: İstanbul, Beylikdüzü
Proje Ofisi: Birsel Saygılı Architecture
Proje Tipi: Alışveriş Merkezi, Ofis
Proje Tipi Grubu: Ticari
Tasarım Ekibi: Birsel Saygılı, Burçak Sönmez
İşveren: Azam Gayrimenkul
Ana Yüklenici: Azam Gayrimenkul
Fotoğraf: Yercekim Mimari Fotograf
Proje Başlangıç Yılı: 2017
Proje Bitiş Yılı: 2017
İnşaat Bitiş Yılı: 2019
Arsa Alanı: 2.564 m²
Toplam İnşaat Alanı: 4.900 m²