4
4/34
Paylaş
Resmi Orjinal Boyutunda Göster
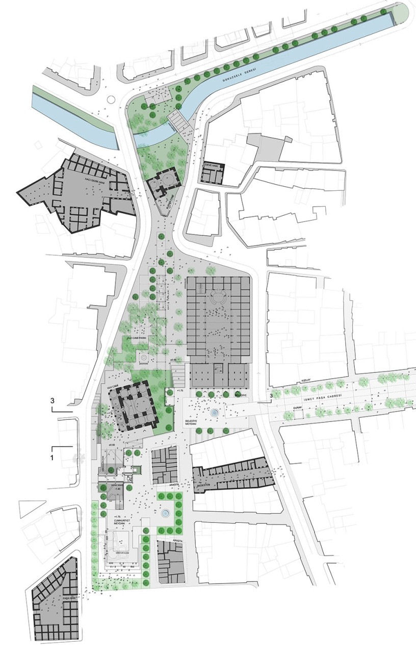
Uşak Belediyesi İsmetpaşa Caddesi Proje Yarışması, 1. Ödül
Project Location: Uşak
Project Type: Urban Design
Proje Tipi Grubu: 1. Ödül
Tasarım Ekibi: Nevzat Oğuz Özer, Yasemen Say Özer, M.Rıfat Akbulut, Özlem Kuzgun Kırak
Yardımcı: Gizem Ataç Önal, Neslihan Cansu Akman, Kürşad Şekercioğlu, Ege Özer