49/57
Paylaş
Resmi Orjinal Boyutunda Göster
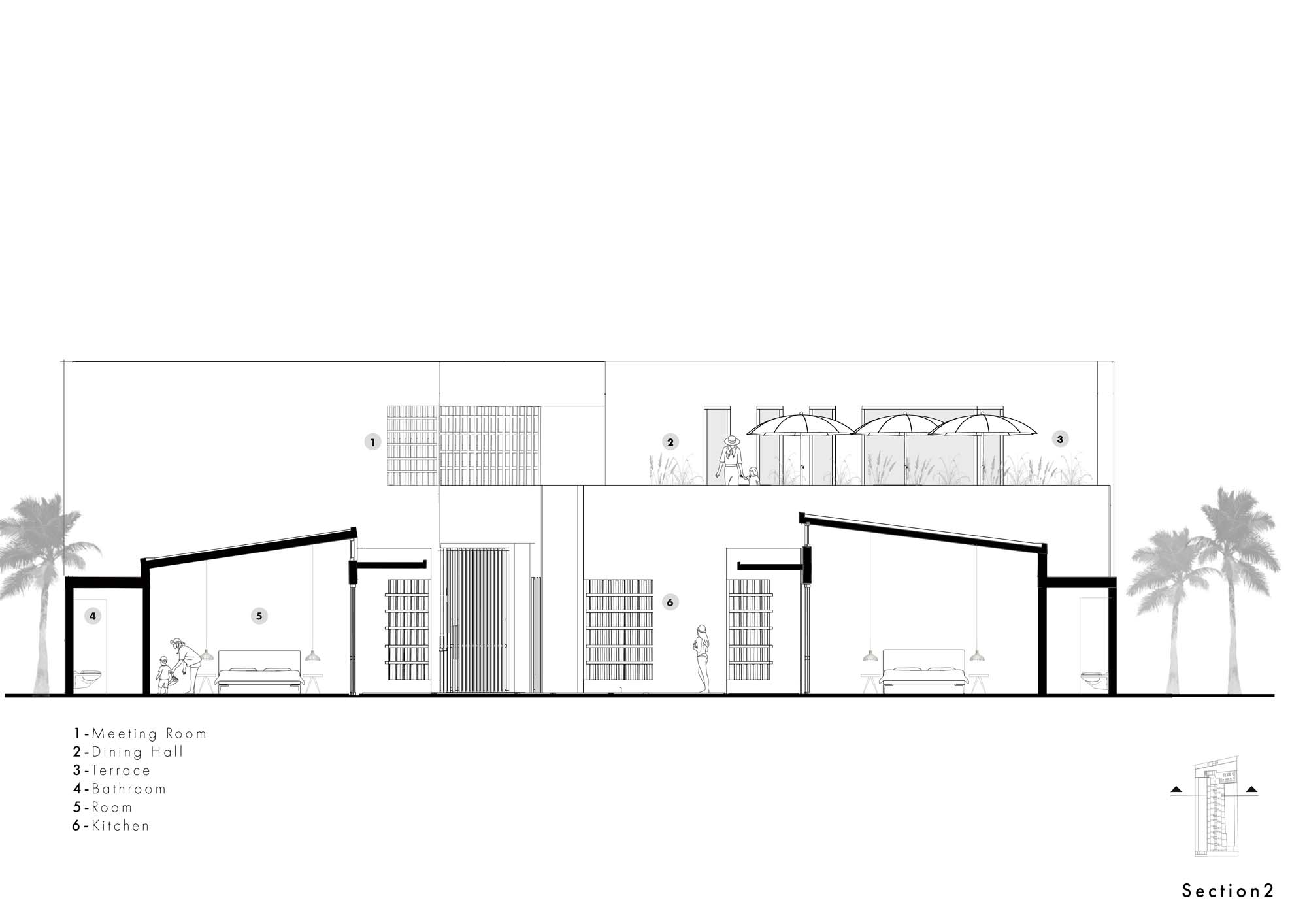
Meltem Beach Rooms
Project Location: Silivri, İstanbul
Project Office: the | work
Project Type: Hotel / Motel
Proje Tipi Grubu: Konaklama
Tasarım Ekibi: Büşra Koçak, Berk Arinç
Ana Yüklenici: ARNC
Project Start Date: 2019
Project End Date: 2020
Construction Start Date: 2020
Construction End Date: 2020
Total Construction Area: 1.000 m²