15/15
Paylaş
Resmi Orjinal Boyutunda Göster
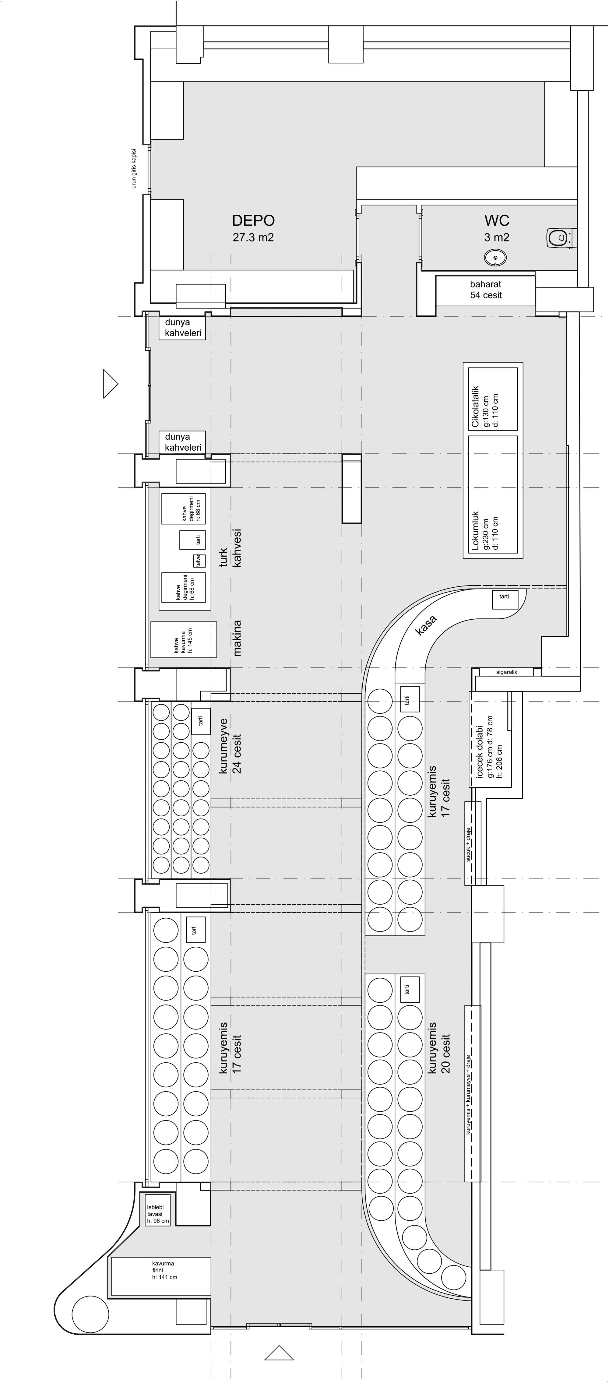
Meray Kuruyemiş Mağazası
Proje Yeri: Gaziantep
Proje Ofisi: Yerce + Taylan Architects
Proje Tipi: Mağaza / Showroom
Proje Tipi Grubu: Ticari
Tasarım Ekibi: Ayça Taylan, Nail Egemen Yerce
İşveren: Meray Kuruyemiş
Yardımcı: Nur Gülgör
Ana Yüklenici: KSmh, Kerem Sürmelihindi
Proje Yöneticisi: Nail Egemen Yerce
Fotoğraf: ALTKAT Architectural Photography, Alp Eren
Proje Başlangıç Yılı: 2020
Proje Bitiş Yılı: 2020
İnşaat Başlangıç Yılı: 2020
İnşaat Bitiş Yılı: 2020
Toplam İnşaat Alanı: 180 m2