17/21
Paylaş
Resmi Orjinal Boyutunda Göster
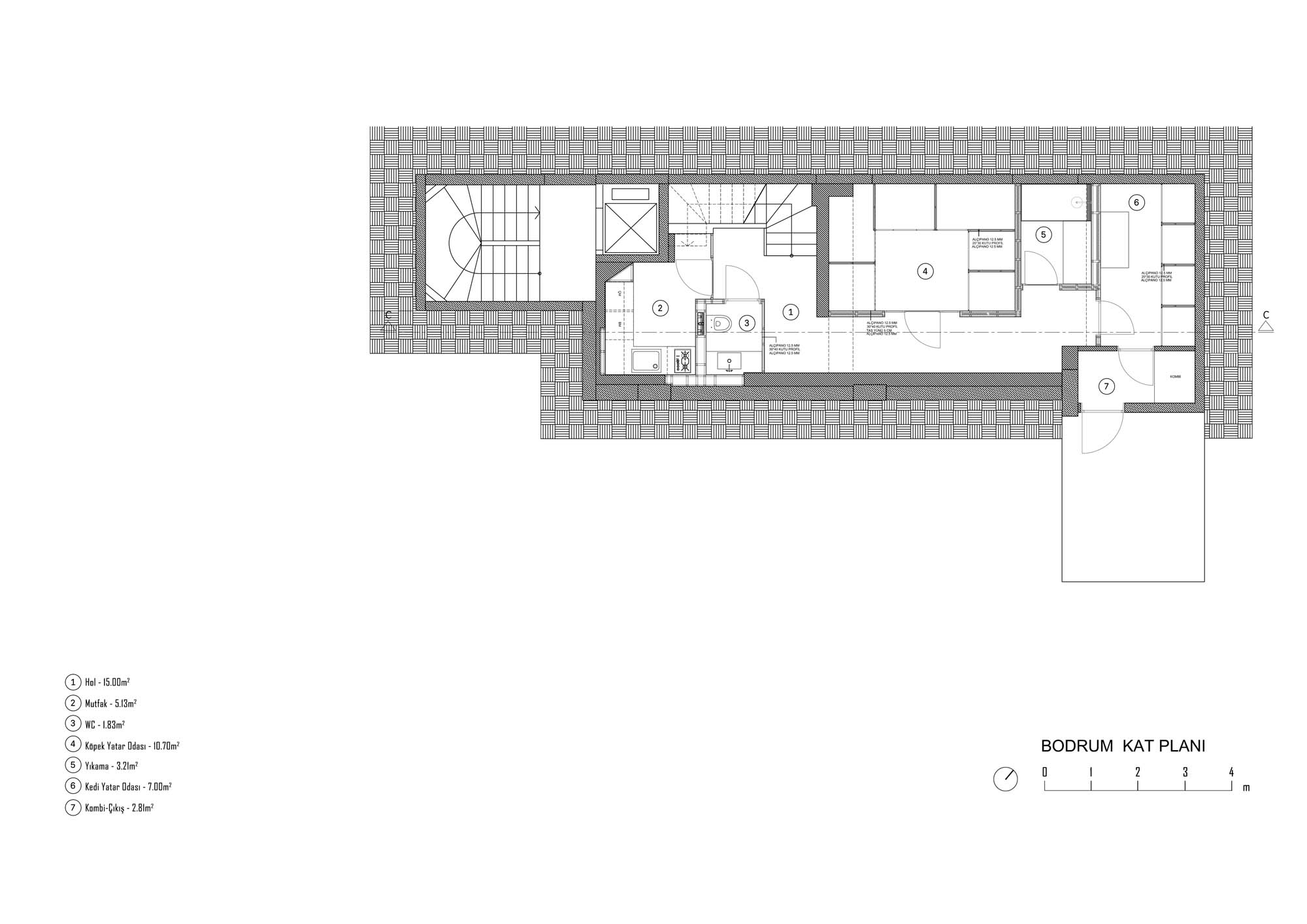
Mint Veteriner Kliniği
Proje Yeri: İstanbul, Şişli
Proje Ofisi: Kat73
Proje Tipi: Diğer Sağlık Yapıları
Proje Tipi Grubu: Sağlık
Tasarım Ekibi: Hüseyin Berk Tuncer
İşveren: Mint Veteriner Kliniği
Yardımcı: Arif Şahin, Tutku Ak, Nur Hazal Atalay
Ana Yüklenici: Kayhan Yapı
Fotoğraf: Orçun Mutlu
Proje Başlangıç Yılı: 2020
Proje Bitiş Yılı: 2020
İnşaat Başlangıç Yılı: 2020
İnşaat Bitiş Yılı: 2020
Arsa Alanı: 198 m2
Toplam İnşaat Alanı: 285 m²