31/36
Paylaş
Resmi Orjinal Boyutunda Göster
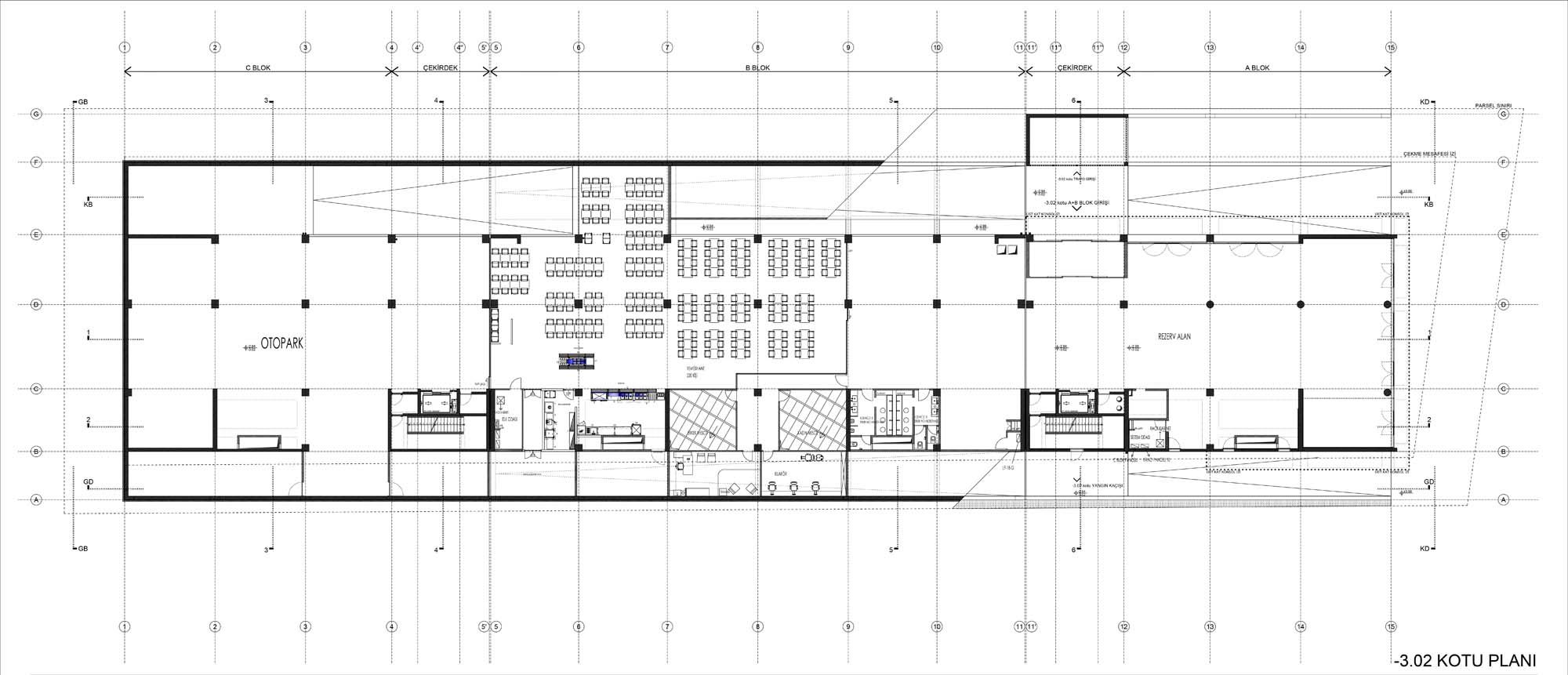
Modanisa Ofis
Proje Yeri: Üsküdar, İstanbul
Proje Ofisi: Udesign Mimarlık
Proje Tipi: Ofis
Proje Tipi Grubu: Ticari
Tasarım Ekibi: Gökçen Hotaman, Umut Uzuner, Caner Seymen, Emre Şahin
İşveren: Modanisa
Yardımcı: Evren Erim, Utku Arslan, Muzaffer Özmetal
Ana Yüklenici: Udesign Mimarlık
Fotoğraf: Gürkan Akay
Şantiye Yöneticisi: Evren Erim
Proje Başlangıç Yılı: 2019
Proje Bitiş Yılı: 2019
İnşaat Başlangıç Yılı: 2019
İnşaat Bitiş Yılı: 2020
Toplam İnşaat Alanı: 1.800 m²