16/18
Paylaş
Resmi Orjinal Boyutunda Göster
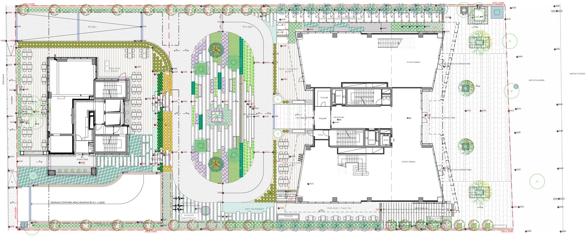
Munzam Sandık Vakfı Erenköy Peyzaj Projesi
Project Location: İstanbul, Kadıköy
Project Office: SAA
Project Type: Garden
Proje Tipi Grubu: Peyzaj Tasarımı
Tasarım Ekibi: Süveyda Bayraktar Atagür
Employer: Türkiye İş Bankası A.Ş. Mensupları Munzam Sosyal Güvenlik ve Yardımlaşma Sandığı Vakfı
Consultant: ALD Aydınlatma, Altensis İnşaat Enerji, PROPLAN Proje Yönetim
Yardımcı: Ali Can Atagür, Şerif Süveydan
Ana Yüklenici: SAA
Projcet Manager: Şerbetçi Mimarlık
Structural Project: 2e Mühendislik
Mechanical Project: Vemeks Mühendislik
Electrical Project: ERK Proje Mühendislik
Photography: Ümit Okan
Project Start Date: 2018
Project End Date: 2019
Construction Start Date: 2019
Construction End Date: 2020
Building Plot Area: 2.822 m²
Total Construction Area: 2.073 m²