39/46
Paylaş
Resmi Orjinal Boyutunda Göster
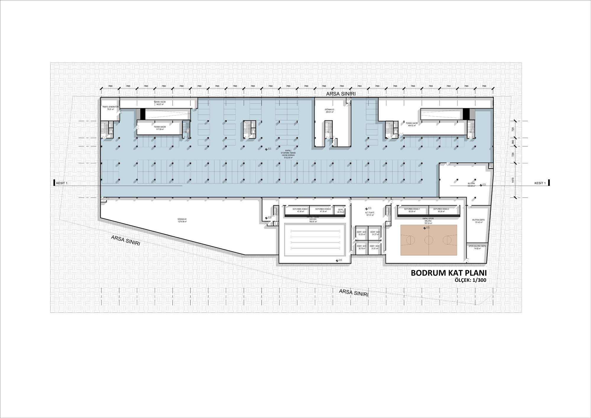
Milli Eğitim Vakfı Özel İzmir Bornova Okulları
Proje Yeri: İzmir, Bornova
Proje Ofisi: Kumru Alpaydın Fikirler, Vista Proje
Proje Tipi: Lise / Ortaöğretim
Proje Tipi Grubu: Eğitim
Tasarım Ekibi: Kumru Alpaydın, Baran Gökgöz, Türker Kesiktaş
İşveren: Milli Eğitim Vakfı
Yardımcı: Eser Aydın, Mehmet Uğur Bilgili, Deniz Durmuşoğlu, Tilbe Şentürk, Pelin Armağan, Ali İhsan Dağdelen, Zeynep Çelik
Ana Yüklenici: Vista Proje
Peyzaj Mimarlığı: Cemre Peyzaj, Kimya Rabia Türker
Statik Projesi: Konkan Mühendislik, Yüksel Konkan
Mekanik Projesi: Promek Mühendislik, Serkan Kasap
Elektrik Projesi: Akay Mühendislik, Ezgi Özkan Durmuşlar
Tesisat Projesi: Promek Mühendislik, Serkan Kasap
Çelik Projesi: Konkan Mühendislik, Yüksel Konkan
Altyapı Projesi: Kaankent Proje, Hamide Sarıkoca Yüce
Yangın Tahliye Projesi: Alara Proje
Proje Başlangıç Yılı: 2018
Proje Bitiş Yılı: 2018
İnşaat Başlangıç Yılı: 2019
İnşaat Bitiş Yılı: 2020
Arsa Alanı: 13.687 m²
Toplam İnşaat Alanı: 37.491 m²