20/24
Paylaş
Resmi Orjinal Boyutunda Göster
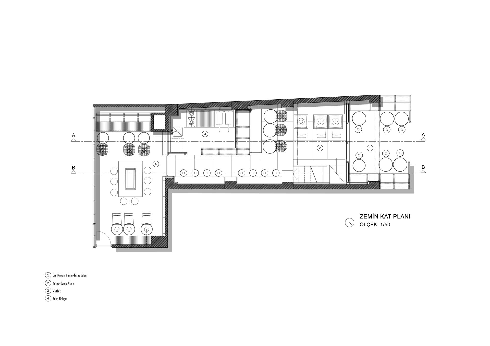
Noa Burger Teşvikiye
Proje Yeri: İstanbul, Şişli
Proje Ofisi: Kat73
Proje Tipi: Restoran / Kafe / Bar
Proje Tipi Grubu: Ticari
Tasarım Ekibi: Hüseyin Berk Tuncer
İşveren: Noa Burger
Yardımcı: Arif Şahin, Tutku Ak, Nur Hazal Atalay
Fotoğraf: Orçun Mutlu
Proje Başlangıç Yılı: 2020
Proje Bitiş Yılı: 2020
İnşaat Başlangıç Yılı: 2020
İnşaat Bitiş Yılı: 2020
Toplam İnşaat Alanı: 95.0 m2