30/43
Paylaş
Resmi Orjinal Boyutunda Göster
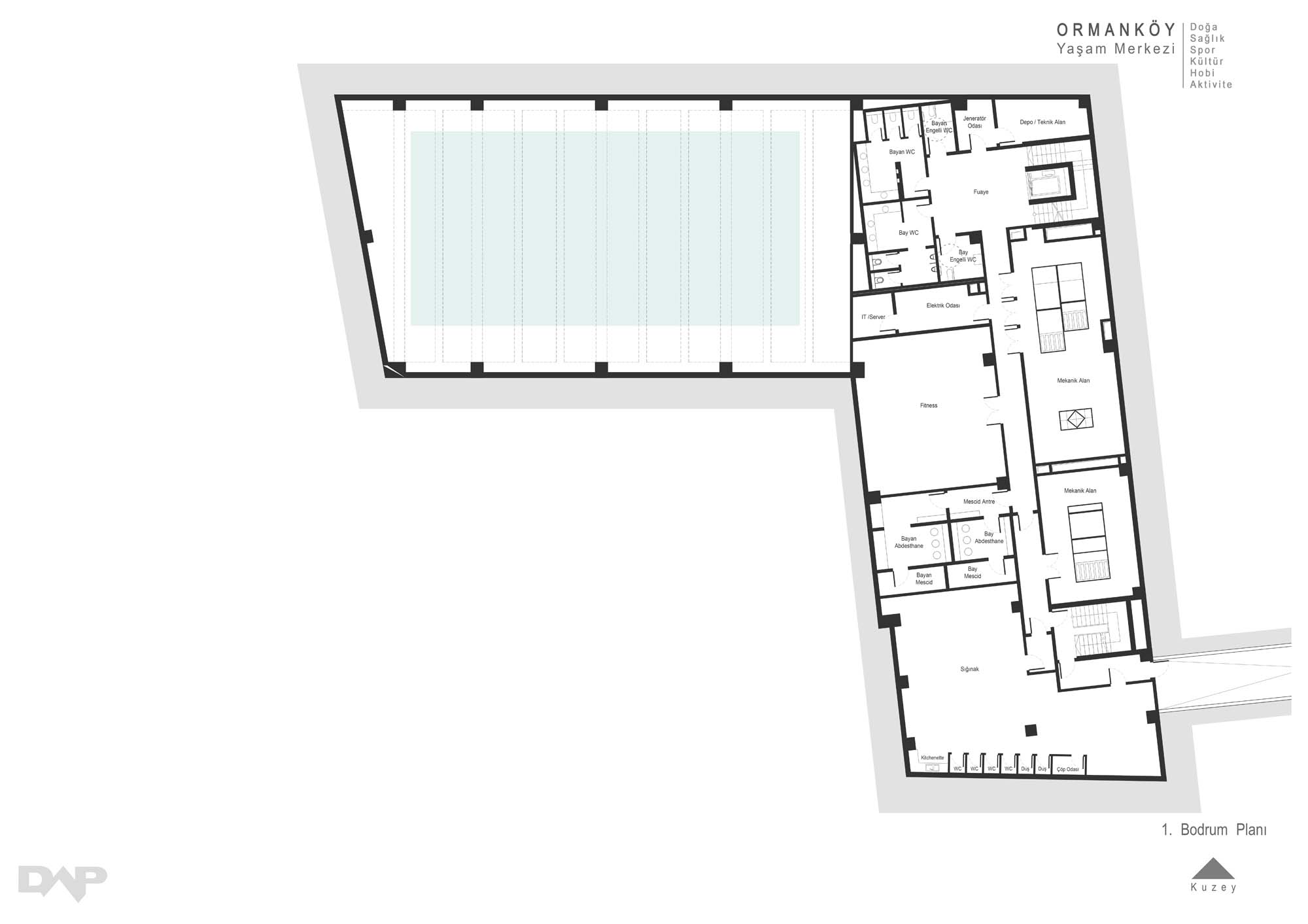
Ormanköy Yaşam Merkezi
Proje Yeri: İstanbul, Çekmeköy
Proje Ofisi: Dap Yapı
Proje Tipi: Sosyal Tesis
Proje Tipi Grubu: Ticari
Tasarım Ekibi: Mustafa Kemal Kayış
İşveren: EKGYO
Danışman: NN Grup
Yardımcı: Seray Öztürk
Ana Yüklenici: Dap Yapı
Peyzaj Mimarlığı: ON Tasarım
İç Mekan Projesi: Murat Saçlıoğlu, Fatih Aşçı
Proje Yöneticisi: Murat Saçlıoğlu, Seray Öztürk
Statik Projesi: Perform Mühendislik
Mekanik Projesi: Anka Mühendislik
Çelik Projesi: Perform Mühendislik
Yangın Güvenlik Danışmanı: Hüseyin Hançerli
Şantiye Yöneticisi: Murat Saçlıoğlu
Proje Başlangıç Yılı: 2019
Proje Bitiş Yılı: 2020
İnşaat Başlangıç Yılı: 2020
İnşaat Bitiş Yılı: 2020
Arsa Alanı: 3.890 m²
Toplam İnşaat Alanı: 5.276 m²