16/16
Paylaş
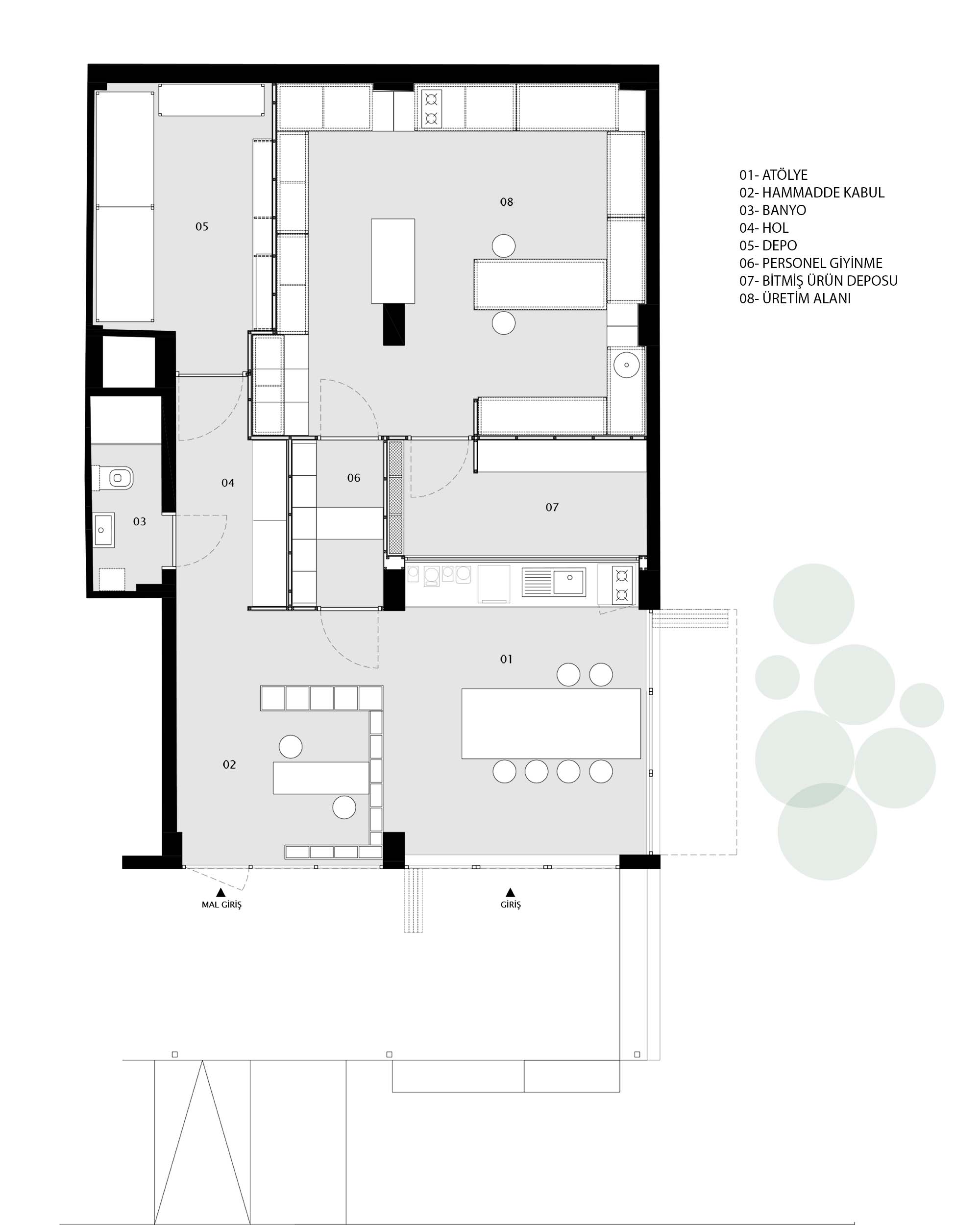
Resmi Orjinal Boyutunda Göster
Otama Kırkpınar
Proje Yeri: Sapanca, Adapazarı (Sakarya)
Proje Ofisi: Atölye Kolektif
Proje Tipi: Atölye / İmalathane
Proje Tipi Grubu: Endüstriyel
Tasarım Ekibi: Evrim Akcan, Arif Bıltır, Emre Torbaoğlu
İşveren: Otama Kırkpınar
Yardımcı: Ayçıl Yılmaz, Selim Acar
Ana Yüklenici: Atölye Kolektif
Proje Yöneticisi: Emre Torbaoğlu
Fotoğraf: Engin Volkan
Mimari Mesleki Kontrollük: Selim Acar
Proje Başlangıç Yılı: 2019
Proje Bitiş Yılı: 2019
İnşaat Başlangıç Yılı: 2019
İnşaat Bitiş Yılı: 2020
Toplam İnşaat Alanı: 100 m2