35/51
Paylaş
Resmi Orjinal Boyutunda Göster
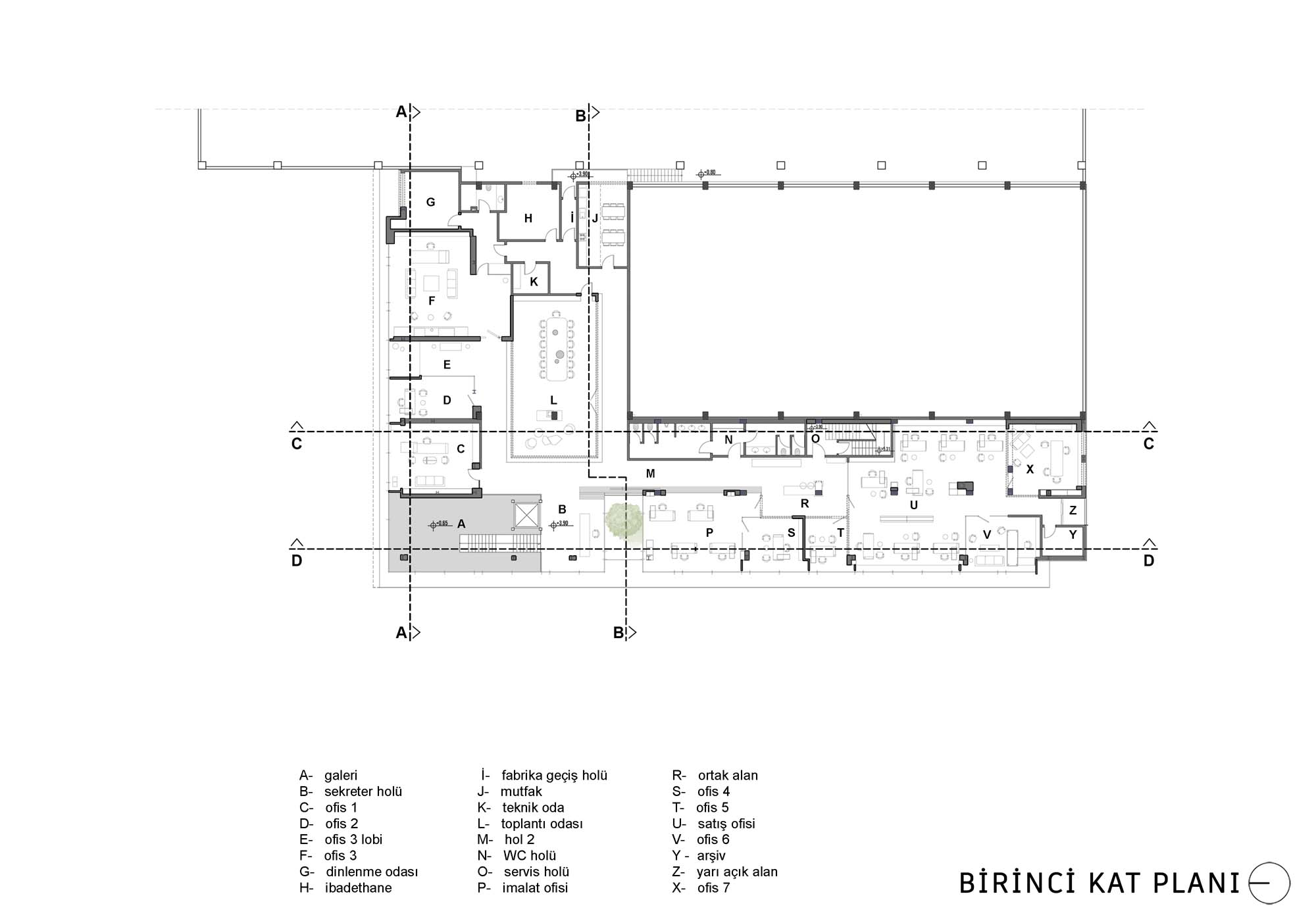
Samsun Segman Sanayi
Proje Yeri: Samsun
Proje Ofisi: PS Mimarlık
Proje Tipi: Ofis
Proje Tipi Grubu: Ticari, Endüstriyel
Tasarım Ekibi: Pınar Erol, Semih Erol, Sümeyra Muslu
İşveren: Samsun Segman Sanayi
Ana Yüklenici: Samsun Segman Sanayi
Çelik Projesi: Zübeyir Mustafa Çakır
Fotoğraf: Erkan Er
Şantiye Yöneticisi: Semih Erol
Proje Başlangıç Yılı: 2018
Proje Bitiş Yılı: 2019
İnşaat Başlangıç Yılı: 2018
İnşaat Bitiş Yılı: 2020
Arsa Alanı: 9.750 m²
Toplam İnşaat Alanı: 1.950 m²