33/37
Paylaş
Resmi Orjinal Boyutunda Göster
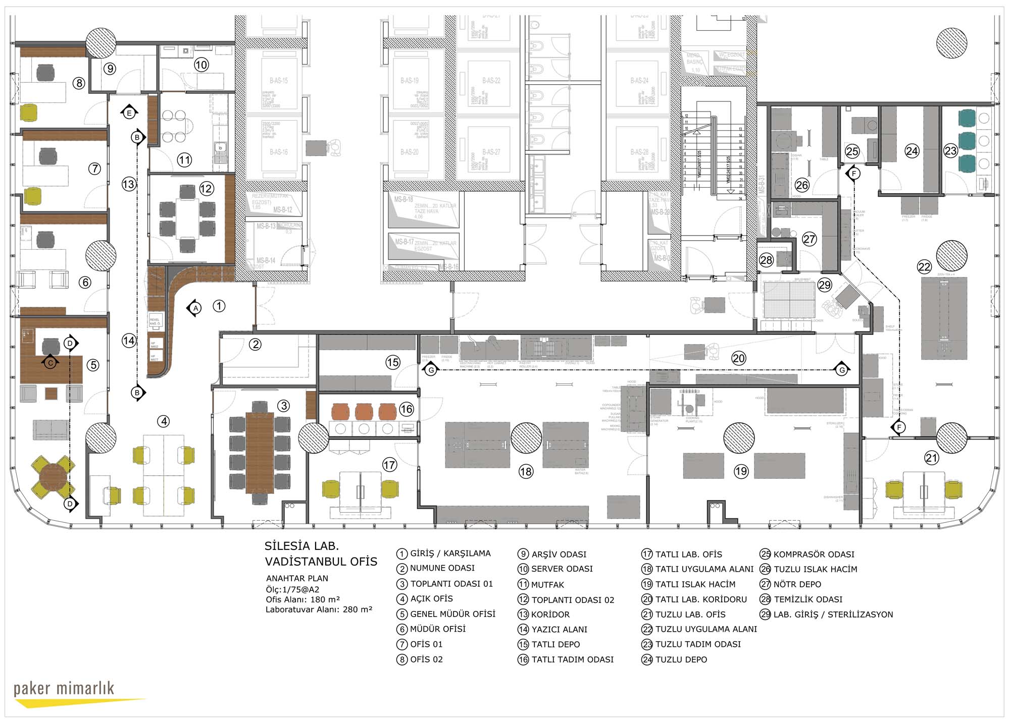
Silesia Ofis ve Laboratuvar
Proje Yeri: Sarıyer, İstanbul
Proje Ofisi: Paker Mimarlık
Proje Tipi: Ofis
Proje Tipi Grubu: Ticari
Tasarım Ekibi: Sinan Paker, Zeynep Paker, Özgün Yılmaz, Rabia Alpargu
İşveren: Silesia
Ana Yüklenici: Paker Mimarlık
Proje Yöneticisi: Sinan Paker, Özgün Yılmaz
Mekanik Projesi: ACC MEKANİK
Tesisat Projesi: ACC MEKANİK
Fotoğraf: Emre Ogan
Şantiye Yöneticisi: Özgün Yılmaz
Proje Başlangıç Yılı: 2019
Proje Bitiş Yılı: 2019
İnşaat Başlangıç Yılı: 2019
İnşaat Bitiş Yılı: 2020
Toplam İnşaat Alanı: 460 m²