22/24
Paylaş
Resmi Orjinal Boyutunda Göster
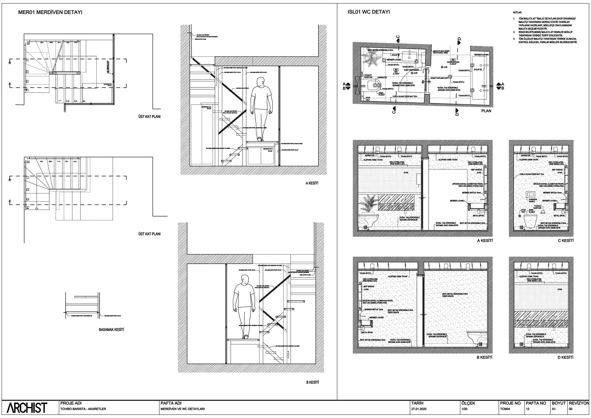
Tchibo Barista Akaretler
Project Location: Beşiktaş, İstanbul
Project Office: Archist Mimarlık
Project Type: Restaurant / Café / Bar
Proje Tipi Grubu: Commercial
Tasarım Ekibi: Ceyhan Gönen, Cenk Aykut
Employer: Tchibo Türkiye
Yardımcı: İrem Tıkız, Ece Naz Uyan
Ana Yüklenici: Max Mimarlık
Projcet Manager: Ceyhan Gönen
Architectural Supervision: Max Mimarlık
Project Start Date: 2019
Project End Date: 2020
Construction Start Date: 2020
Construction End Date: 2020
Total Construction Area: 80 m²