21/21
Paylaş
Resmi Orjinal Boyutunda Göster
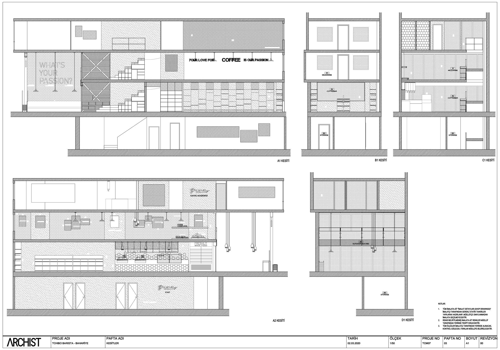
Tchibo Barista Bahariye
Proje Yeri: Kadıköy, İstanbul
Proje Ofisi: Archist Mimarlık
Proje Tipi: Restoran / Kafe / Bar
Proje Tipi Grubu: Ticari
Tasarım Ekibi: Ceyhan Gönen, Cenk Aykut
İşveren: Tchibo Türkiye
Yardımcı: İrem Tıkız, Ece Naz Uyan
Ana Yüklenici: Max Mimarlık
Proje Yöneticisi: Ceyhan Gönen
Fotoğraf: Tezgah Kreatif
Mimari Mesleki Kontrollük: Max Mimarlık
Proje Başlangıç Yılı: 2019
Proje Bitiş Yılı: 2020
İnşaat Başlangıç Yılı: 2020
İnşaat Bitiş Yılı: 2020
Toplam İnşaat Alanı: 550 m2