24/24
Paylaş
Resmi Orjinal Boyutunda Göster
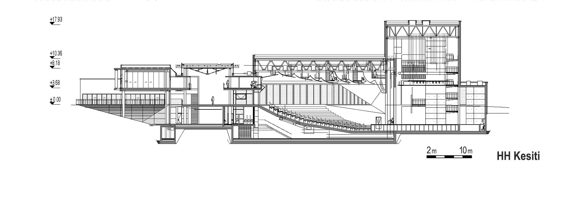
TED Ankara Koleji Sahne Sanatları Gösteri Merkezi
Project Location: İncek, Ankara
Project Office: Uygur Mimarlık
Project Type: Concert Hall
Proje Tipi Grubu: Eğitim
Tasarım Ekibi: Özcan Uygur, Semra Uygur
Employer: TED Ankara Koleji Vakfı
Consultant: Kemal Suner
Yardımcı: Necati Seren, Güliz Erkan, Mustafa Kır, Aybüke Kır, Kemal Yurtgezen, Ahmet Korkmaz, Rabia Uçay, Deniz Uygur
Ana Yüklenici: TED Ankara Koleji Vakfı Okulları İktisadi İşletmesi
Peyzaj Mimarlığı: Can Kubin, Promim Çevre Düzenleme, Kentsel Tasarım
Structural Project: Danyal Kubin, Prota Mühendislik
Mechanical Project: Bahri Türkmen, Bahri Türkmen Mühendislik
Electrical Project: Kemal Ovacık, Ovacık Mühendislik
Acoustic Consultant: Mehmet Çalışkan, Zühre Sü Gül
Photography: Cemal Emden, Deniz Uygur, Gürel Kutlular
Project Start Date: 2016
Project End Date: 2017
Construction Start Date: 2017
Construction End Date: 2020
Total Construction Area: 9.405 m2