41/46
Paylaş
Resmi Orjinal Boyutunda Göster
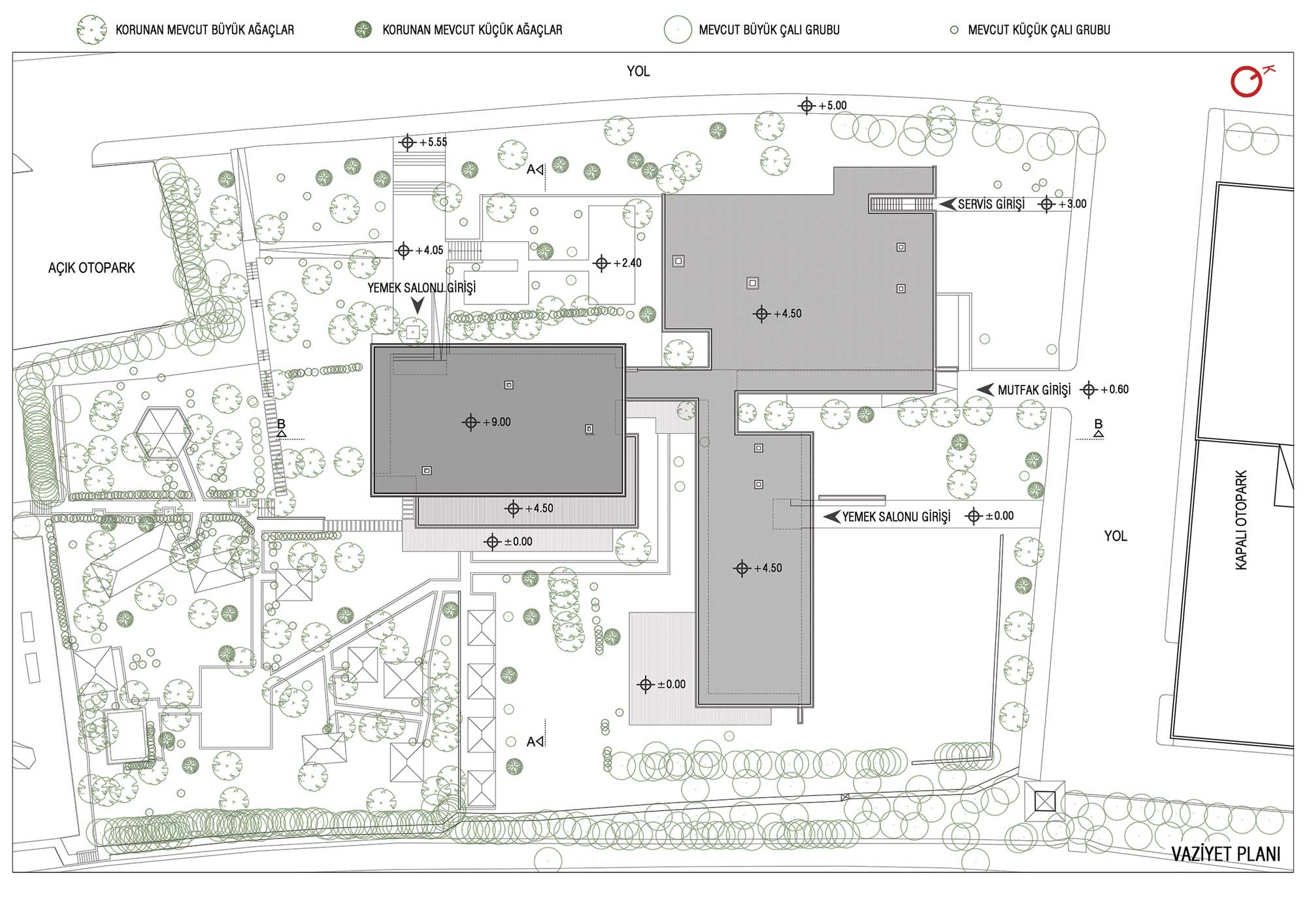
TBMM 100 Yıl Bahçe Lokantası
Project Location: Ankara, Çankaya
Project Office: Erkan Erdoğan Mimarlık
Project Type: Restaurant / Café / Bar
Proje Tipi Grubu: Commercial
Tasarım Ekibi: Erkan Erdoğan
Employer: Türkiye Büyük Millet Meclisi (TBMM)
Yardımcı: Dilara Birlik, Gizem Diker
Ana Yüklenici: Güzeller İnşaat
Structural Project: Etos Proje
Mechanical Project: Sa-Se Mühendislik
Electrical Project: Sa-Se Mühendislik
Project Start Date: 2019
Project End Date: 2019
Construction Start Date: 2019
Construction End Date: 2020
Building Plot Area: 9.000 m²
Total Construction Area: 2.000 m2