10/10
Paylaş
Resmi Orjinal Boyutunda Göster
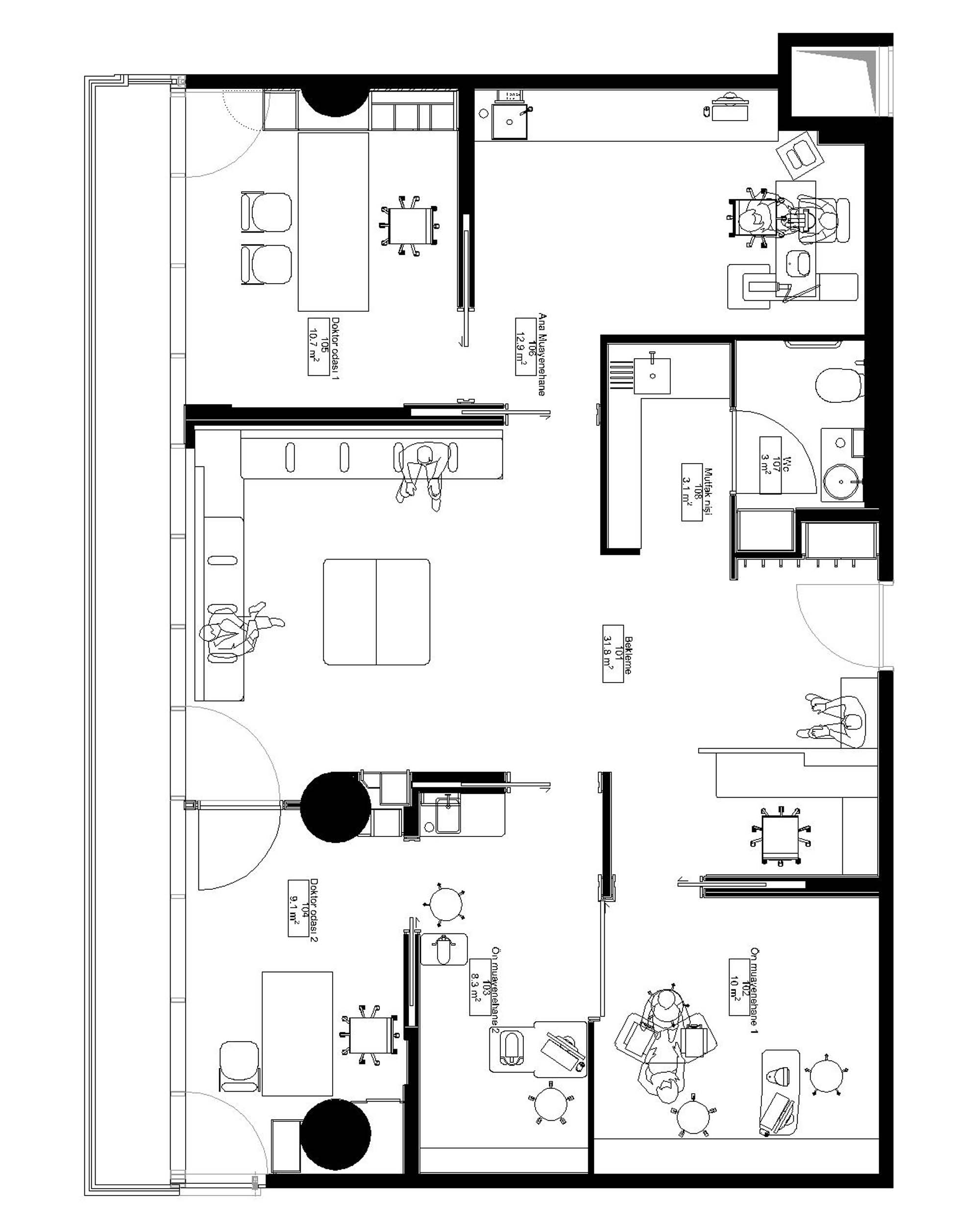
Yonca Akova Göz Kliniği
Project Location: Çankaya, Ankara
Project Office: Belgin Koz Mimarlık
Project Type: Hospital / Clinic
Proje Tipi Grubu: Sağlık
Tasarım Ekibi: Belgin Koz, Simla Yüzgeç
Employer: Yonca Akova
Ana Yüklenici: Belgin Koz Mimarlık
Photography: Simla Yüzgeç, Elif Düzel
Project Start Date: 2020
Project End Date: 2020
Construction Start Date: 2020
Construction End Date: 2020
Total Construction Area: 95 m²