14/80
Paylaş
Resmi Orjinal Boyutunda Göster
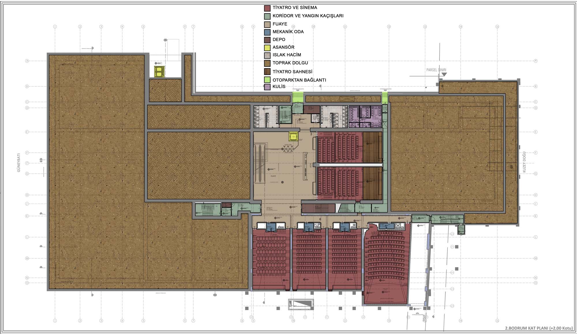
Zeytin Burnu Fabrika-i Hümayun Fişek Fabrikası Restorasyon Projesi
Proje Yeri: Zeytinburnu, İstanbul
Proje Ofisi: MTM (Mimari Tasarım ve Uygulama Merkezi) Mimarlık
Tasarım Ekibi: Hasan Kıvırcık, Nilgün Kıvırcık
İşveren: ÖZAK GYO - Yenigün - Ziylan - Emlak Konut Ortaklığı
Danışman: Can Binan, Feridun Çılı
Yardımcı: Erol Alparslan, Meltem Akadur, Fatih Öztürk, Befin Günay, Tuğçe Kırmızıoğlu
Ana Yüklenici: İnter Yapı AŞ
İç Mekan Projesi: Metex Design Group, B Dizayn
Proje Yöneticisi: Burcu Durmaz
Statik Projesi: Tezkon Mühendislik, Modern Mühendislik
Mekanik Projesi: Tanrıöver Mekanik
Tesisat Projesi: Tanrıöver Mekanik
Çelik Projesi: Tezkon Mühendislik
Akustik Danışmanı: Duygu Arsuat
Proje Başlangıç Yılı: 2017
Proje Bitiş Yılı: 2020
İnşaat Başlangıç Yılı: 2017
İnşaat Bitiş Yılı: 2020
Arsa Alanı: 70.945 m2
Toplam İnşaat Alanı: 48.920 m2