31/32
Paylaş
Resmi Orjinal Boyutunda Göster
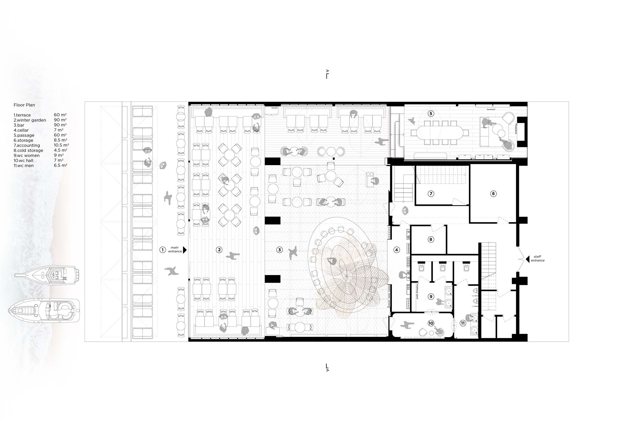
Paradiso Palms Kokteyl Bar
Proje Yeri: Mersin
Proje Ofisi: Slash Architects
Proje Tipi: Restoran / Kafe / Bar
Proje Tipi Grubu: Ticari
Tasarım Ekibi: Şule Ertürk, Nergis Kahraman
İşveren: Cumhur Sert, Orhun Eraslan
Ana Yüklenici: Alize Yapı Mühendislik
Proje Yöneticisi: Şule Ertürk
Fotoğraf: ALTKAT Architectural Photography
Proje Başlangıç Yılı: 2019
Proje Bitiş Yılı: 2020
İnşaat Başlangıç Yılı: 2020
İnşaat Bitiş Yılı: 2020
Toplam İnşaat Alanı: 350 m²