28/33
Paylaş
Resmi Orjinal Boyutunda Göster
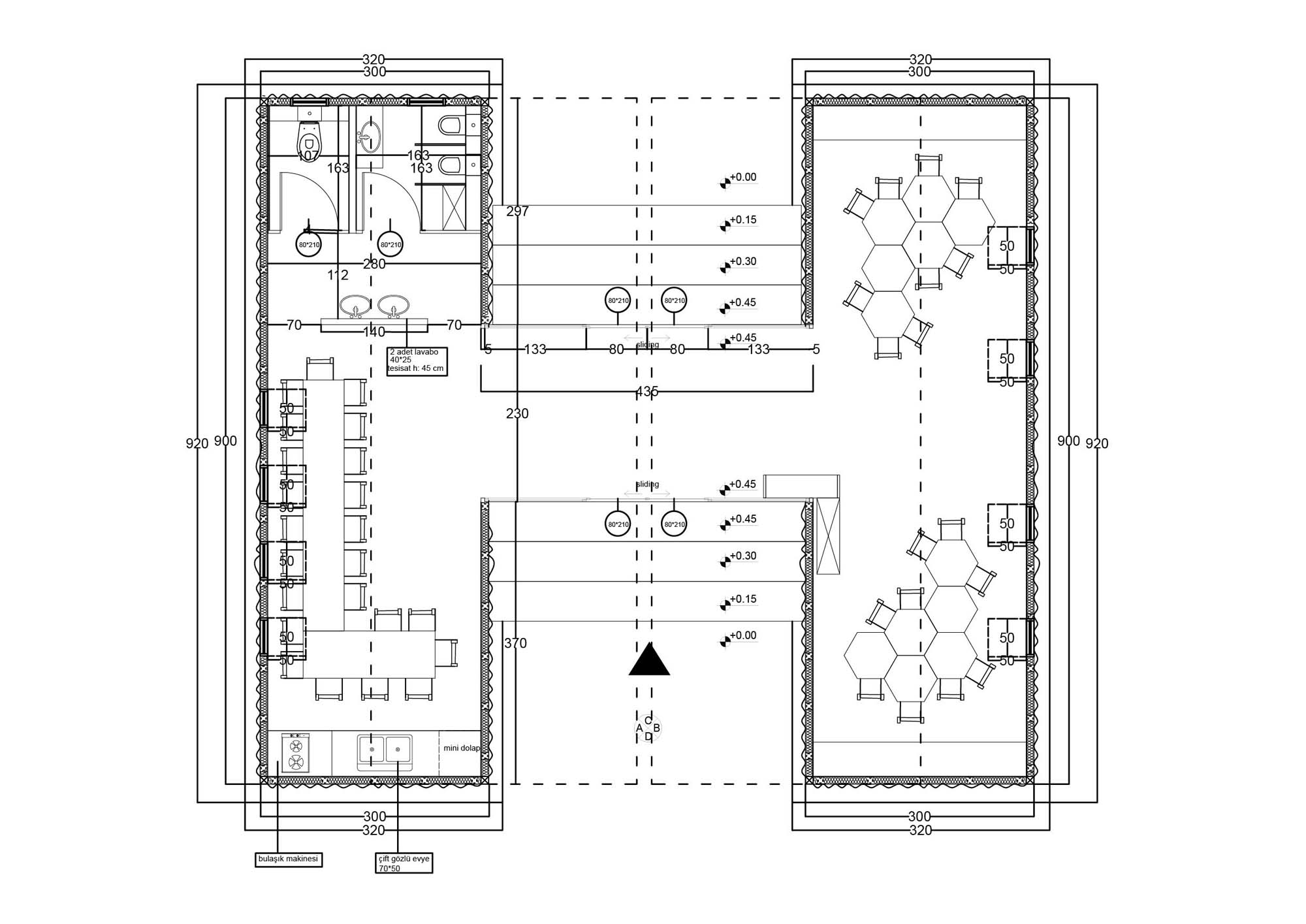
Kutu Yuva Konteyner Anaokulu
Project Location: Menderes, İzmir
Project Office: ACT FOR-Harekete Geç
Project Type: Preschool / Nursery, Konteyner
Proje Tipi Grubu: Eğitim Yapısı
Tasarım Ekibi: Didem Kan Kılıç, Selin Gülden, İpek Kaştaş Uzun, Gözay Tepekesici, Anıl Nayır, Zeynep Eylül Erdem, Ömer Akkaş, Fatih Kurt, Alp Peşteli, Fatih Uçar, İdil Koç, Ebru Özalp
Employer: Menderes İlçe Milli Eğitim Müdürlüğü
Ana Yüklenici: Aktim Konteyner
Projcet Manager: Didem Kan Kılıç
Project Start Date: 2018
Project End Date: 2018
Construction Start Date: 2018
Construction End Date: 2018
Building Plot Area: 345 m2
Total Construction Area: 64 m2