30/31
Paylaş
Resmi Orjinal Boyutunda Göster
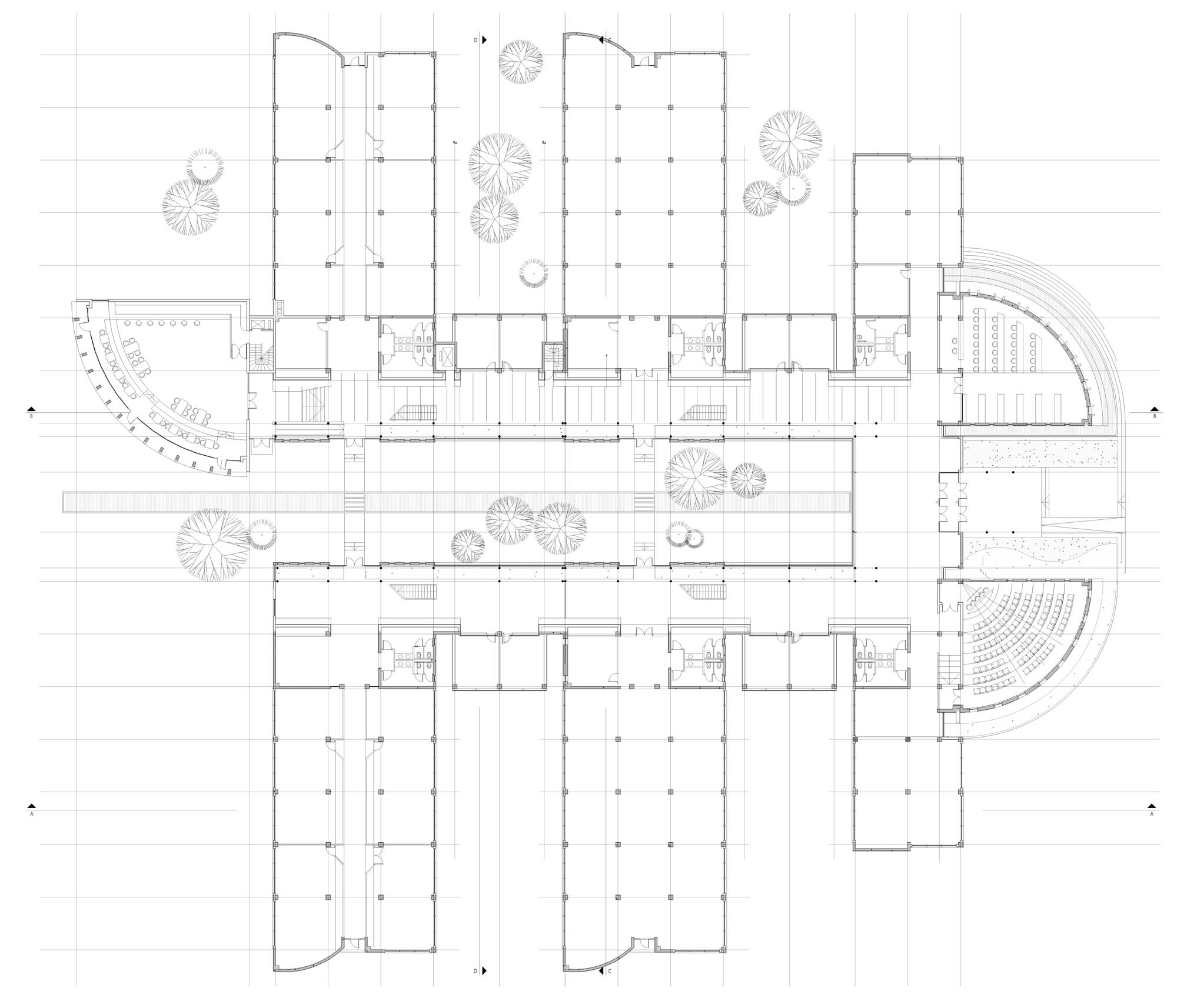
ODTÜ İkizler Yazılımevi
Proje Yeri: Çankaya, Ankara
Proje Ofisi: Tektonika Mimarlık
Proje Tipi: Ofis, Ar-Ge Binası
Proje Tipi Grubu: Ticari
Tasarım Ekibi: Semra Teber Yener
İşveren: Orta Doğu Teknik Üniversitesi (ODTÜ)
Ana Yüklenici: Ebi A.Ş.
Statik Projesi: Danyel Kubin, Prota Mühendislik
Mekanik Projesi: Ali Tunçay, Tunçay Mühendislik
Elektrik Projesi: Kemal Güravşar, Promete Mühendislik
Fotoğraf: Fethi Mağara, Tayfur Gürel, Netvizyon
Proje Başlangıç Yılı: 1997
Proje Bitiş Yılı: 1998
İnşaat Başlangıç Yılı: 1998
İnşaat Bitiş Yılı: 2000
Arsa Alanı: 14.300 m²
Toplam İnşaat Alanı: 7.800 m²