19/21
Paylaş
Resmi Orjinal Boyutunda Göster
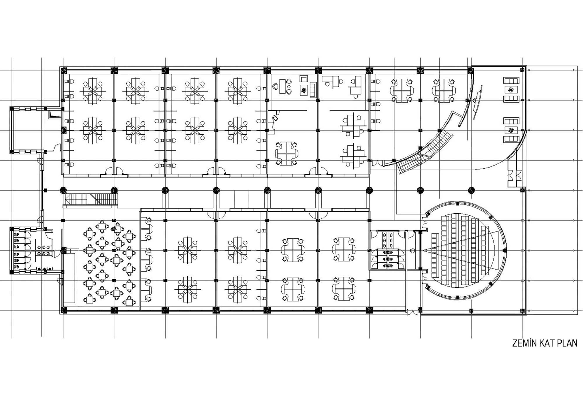
HÜ Ar-Ge Binası
Proje Yeri: Çankaya, Ankara
Proje Ofisi: Tektonika Mimarlık
Proje Tipi: Ofis, Ar-Ge Binası
Proje Tipi Grubu: Ticari
Tasarım Ekibi: Semra Teber Yener
İşveren: HÜ-TEKNOKENT A.Ş.
Ana Yüklenici: Mikrodis
Statik Projesi: Osman Muyesser, OSM
Mekanik Projesi: Hakan Öztürk, Mak-el
Elektrik Projesi: Çağla Mühendislik, Cemal Doğan
Proje Başlangıç Yılı: 2003
Proje Bitiş Yılı: 2004
İnşaat Başlangıç Yılı: 2004
İnşaat Bitiş Yılı: 2006
Arsa Alanı: 9.900 m2
Toplam İnşaat Alanı: 4.400 m²