14/19
Paylaş
Resmi Orjinal Boyutunda Göster
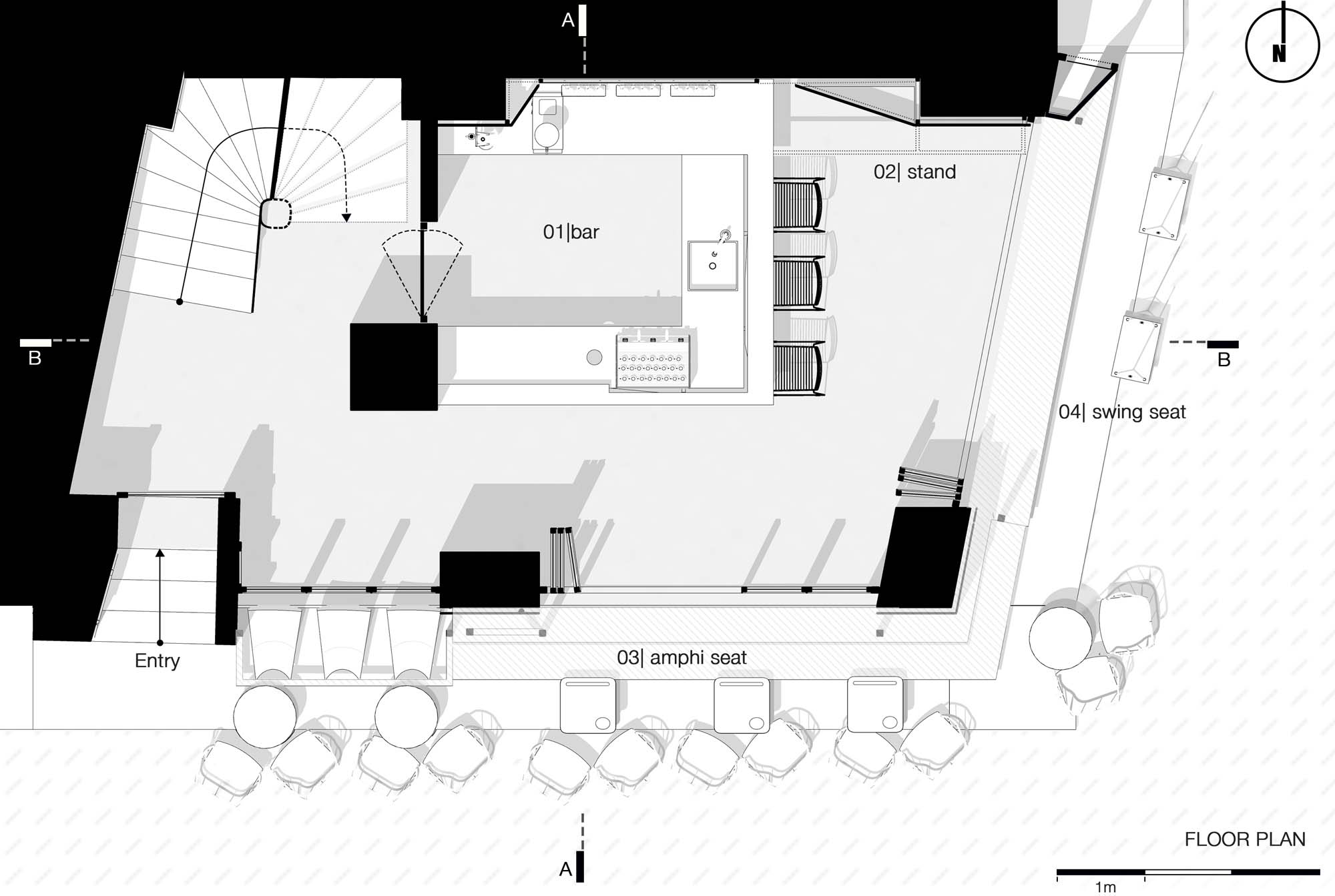
La Cuento Kahve Dükkanı
Proje Yeri: Beyoğlu, İstanbul
Proje Ofisi: Arkinom Mimarlık
Proje Tipi: Restoran / Kafe / Bar
Proje Tipi Grubu: Ticari
Tasarım Ekibi: Erdem Dokuzer, Neşe Dokuzer
İşveren: La Cuento
Ana Yüklenici: Arkinom Mimarlık
Proje Başlangıç Yılı: 2019
Proje Bitiş Yılı: 2020
İnşaat Başlangıç Yılı: 2020
İnşaat Bitiş Yılı: 2020
Arsa Alanı: 35 m2
Toplam İnşaat Alanı: 175 m²