18/25
Paylaş
Resmi Orjinal Boyutunda Göster
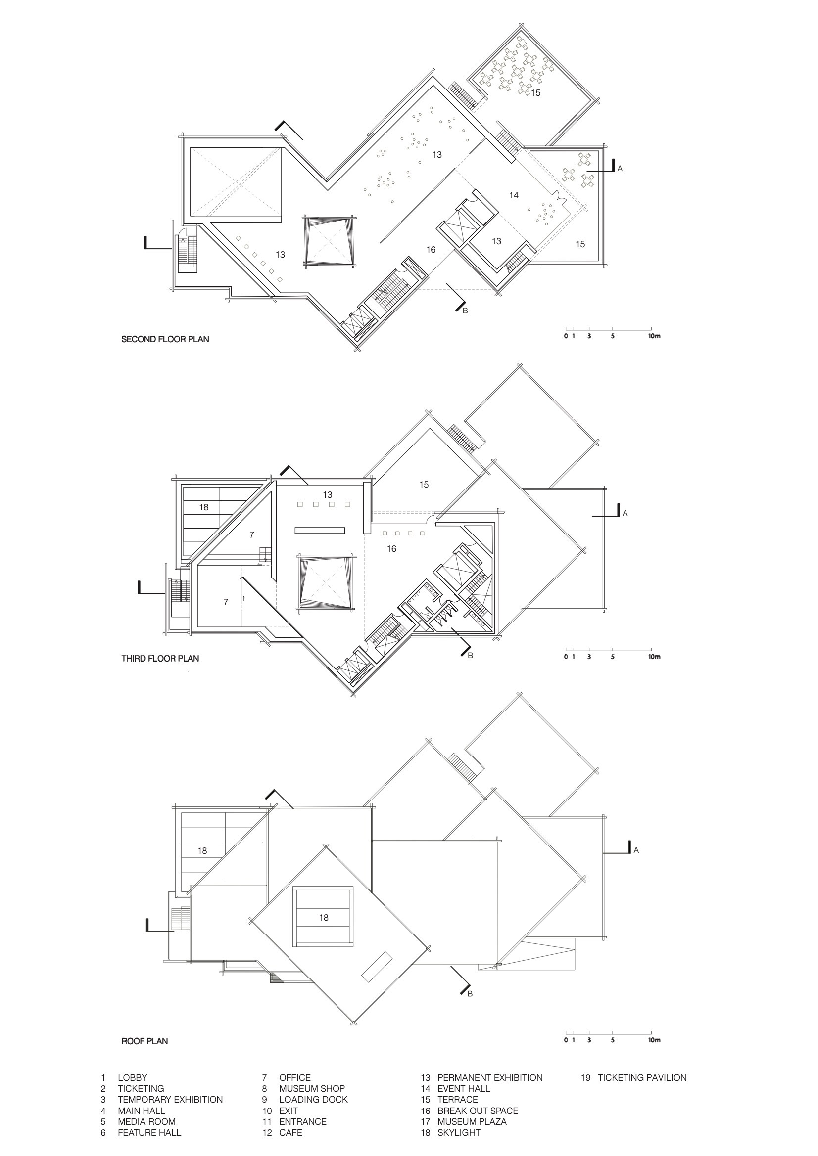
Odunpazari Modern Muze
Proje Yeri: Eskişehir
Proje Ofisi: Kengo Kuma & Associates
Proje Tipi: Müze
Proje Tipi Grubu: Kültür Yapısı
Tasarım Ekibi: Yuki Ikeguchi
Mimari Proje Ekibi: Yasemin Şahiner
İşveren: Polimeks İnşaat
Yardımcı: Man Wai Yiu, Anteo Taro Sanada
Ana Yüklenici: Polimeks İnşaat
Fotoğraf: NAARO, Batuhan Keskiner
İnşaat Bitiş Yılı: 2019
Toplam İnşaat Alanı: 4.500 m2