19/21
Paylaş
Resmi Orjinal Boyutunda Göster
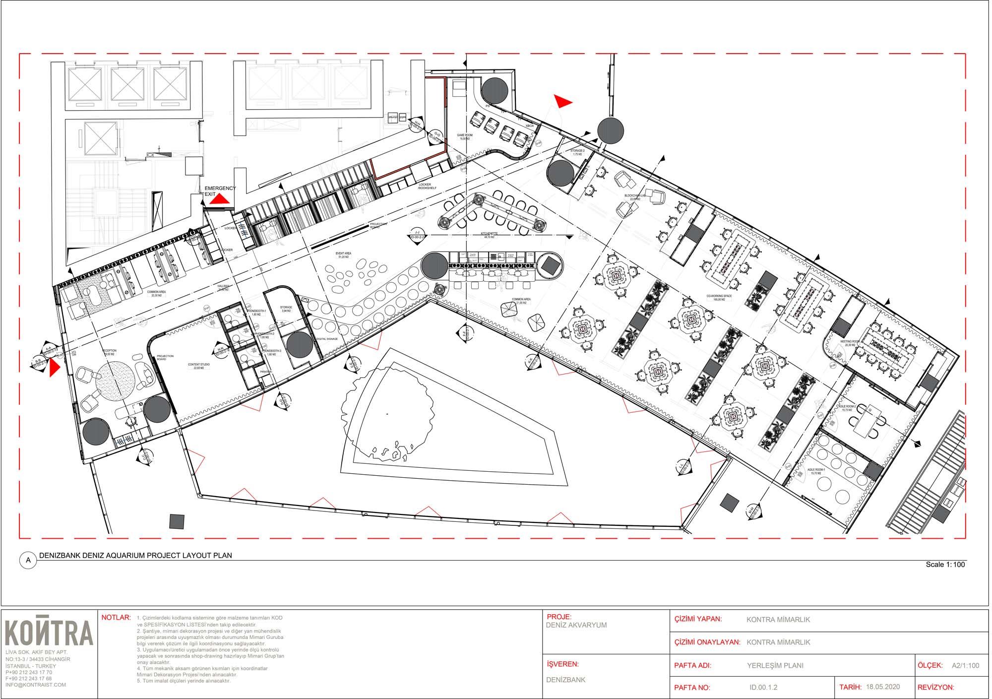
Denizbank Akvaryum
Project Location: İstanbul, Şişli
Project Office: Kontra Mimarlık
Project Type: Offices
Proje Tipi Grubu: Commercial
Tasarım Ekibi: Gülşah Cantaş, Cengiz Bozal, Hacer Doğan, Eda Bozkurt, Burak Göbüt
Employer: Denizbank AŞ
Ana Yüklenici: Artika
Photography: İbrahim Özbunar
Project Start Date: 2019
Project End Date: 2020
Construction Start Date: 2020
Construction End Date: 2020