29/32
Paylaş
Resmi Orjinal Boyutunda Göster
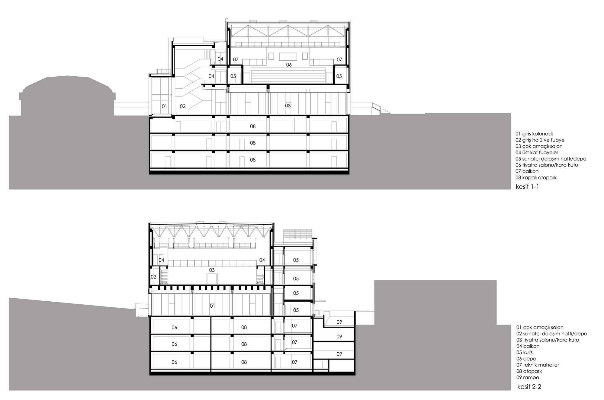
Kadıköy Tiyatro
Proje Yeri: Kadıköy, İstanbul
Proje Ofisi: BBMD Bingöl Barka Mimarlık ve Danışmanlık
Proje Tipi: Tiyatro
Proje Tipi Grubu: Kültür
Tasarım Ekibi: Özgür Bingöl, İlke Barka
İşveren: Kadıköy Belediyesi
Yardımcı: Merve Şen, Pınar Kılıç
Ana Yüklenici: Yapı Grup İnşaat, Güner Elektrik İnşaat
Statik Projesi: Barka Mühendislik
Mekanik Projesi: Meta Mühendislik
Elektrik Projesi: Enproje Mühendislik
Fotoğraf: Cemal Emden
Proje Başlangıç Yılı: 2016
Proje Bitiş Yılı: 2018
İnşaat Başlangıç Yılı: 2018
İnşaat Bitiş Yılı: 2020
Arsa Alanı: 3.880 m²
Toplam İnşaat Alanı: 8.291 m2