37/38
Paylaş
Resmi Orjinal Boyutunda Göster
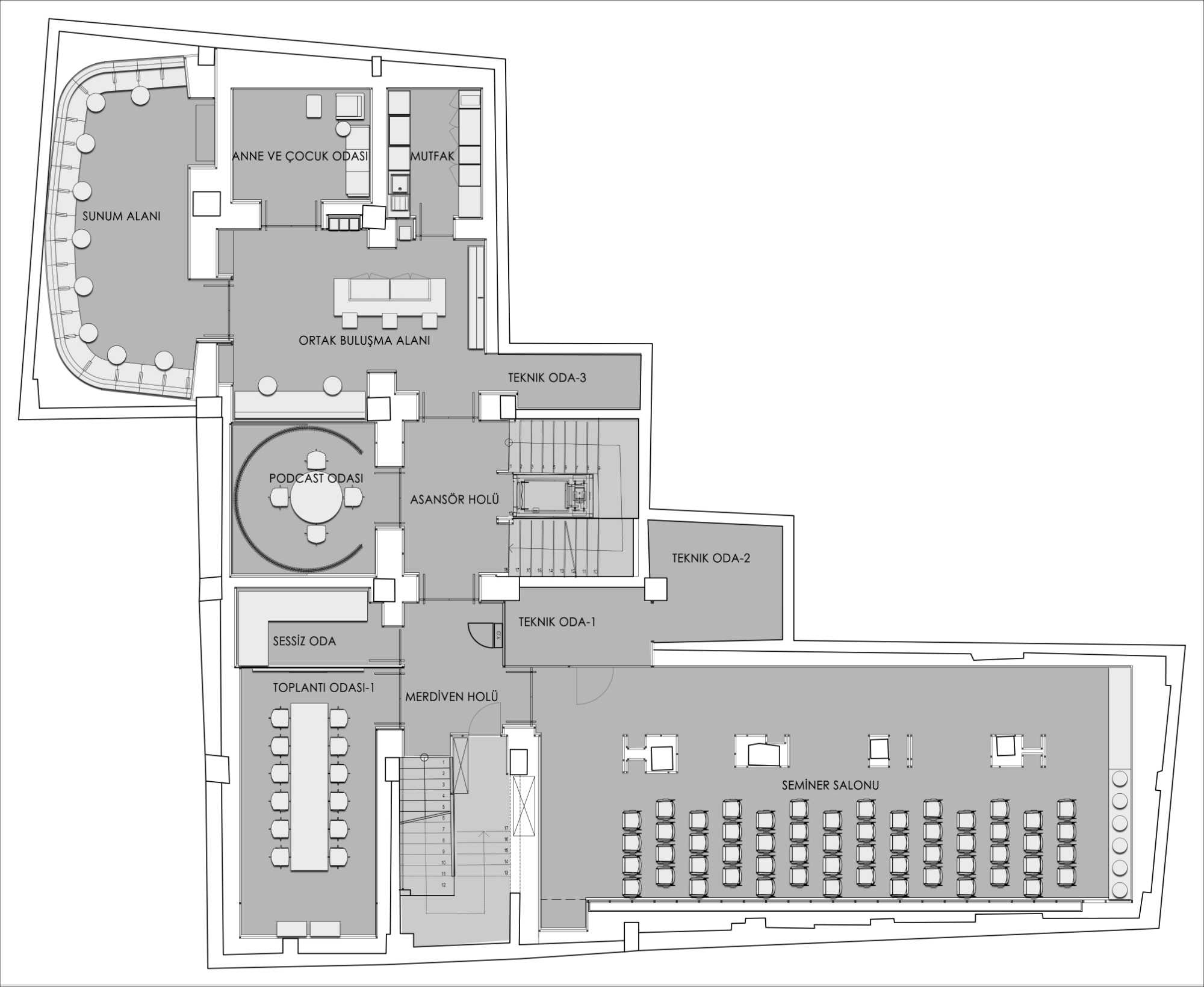
CoBAC Workspace
Proje Yeri: Eminönü, İstanbul
Proje Ofisi: mimaristudio
Proje Tipi: Ofis
Proje Tipi Grubu: Ticari
Tasarım Ekibi: Ayça Akkaya Kul, Önder Kul
Yardımcı: Kaan Gülkıran, Enver Kuda
Mekanik Projesi: Aytimur Mühendislik
Elektrik Projesi: Frekans Elektrik
Fotoğraf: Gürkan Akay, Emre Dörter, Cansu Ayduran
Proje Başlangıç Yılı: 2020
Proje Bitiş Yılı: 2020
İnşaat Başlangıç Yılı: 2021
İnşaat Bitiş Yılı: 2021
Toplam İnşaat Alanı: 2.800 m2