ATAKOL.png
5/5
Paylaş
Resmi Orjinal Boyutunda Göster
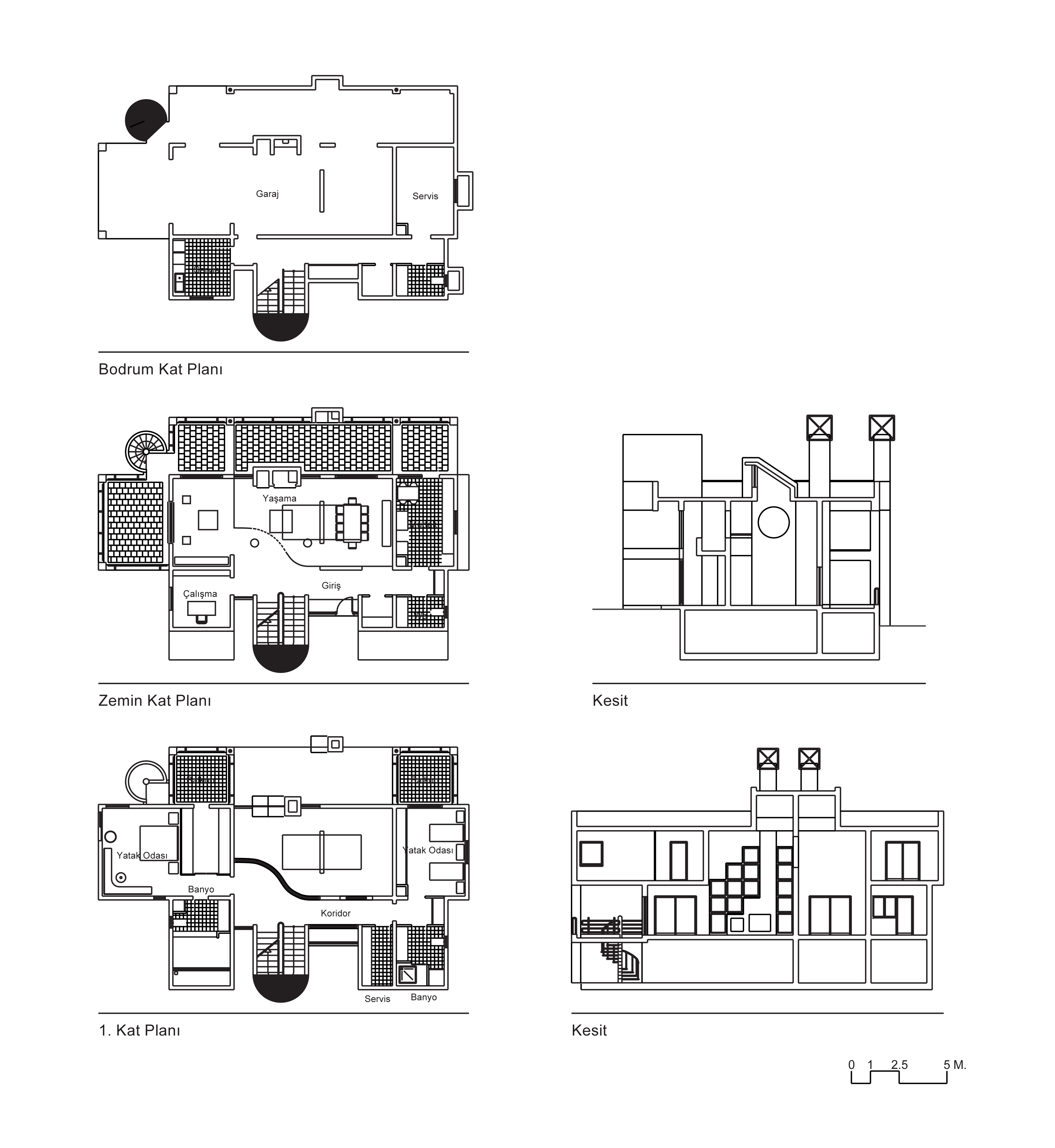
Atakol Evi
Proje Yeri: Kuzey Kıbrıs Türk Cumhuriyeti (KKTC), Girne
Proje Tipi: Tek Ev / Villa
Proje Tipi Grubu: Konut
Tasarım Ekibi: Doruk Pamir, Murat İlter
İnşaat Bitiş Yılı: 1992