17/17
Paylaş
Resmi Orjinal Boyutunda Göster
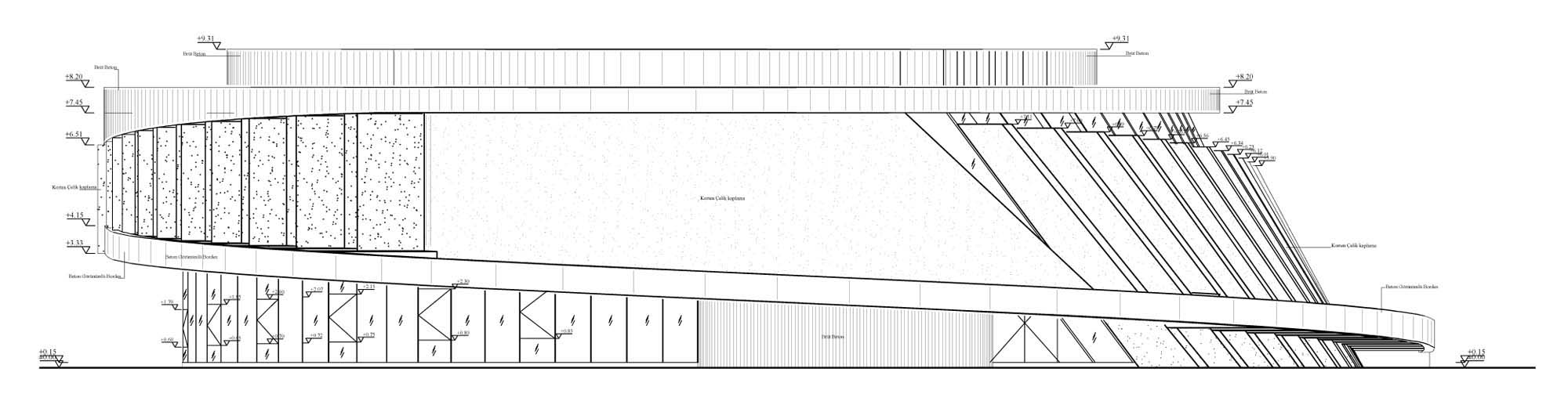
Uluslararası Kıbrıs Üniversitesi Öğrenci Hizmetleri Binası
Project Location: Lefkoşa, Kuzey Kıbrıs Türk Cumhuriyeti (KKTC)
Project Office: Saffet Kaya Architects
Project Type: Higher Education Building, Offices
Proje Tipi Grubu: Eğitim
Tasarım Ekibi: Saffet Kaya Bekiroğlu
Employer: Uluslararası Kıbrıs Üniversitesi
Ana Yüklenici: DRN İnşaat
Construction Drawings: Yaşar Gündeğer
Structural Project: Mert Evre
Mechanical Project: Mustafa Dağbaşı
Electrical Project: Gürcan Kara
Project Start Date: 2015
Project End Date: 2019
Construction Start Date: 2015
Construction End Date: 2020
Total Construction Area: 1.611 m2