11/17
Paylaş
Resmi Orjinal Boyutunda Göster
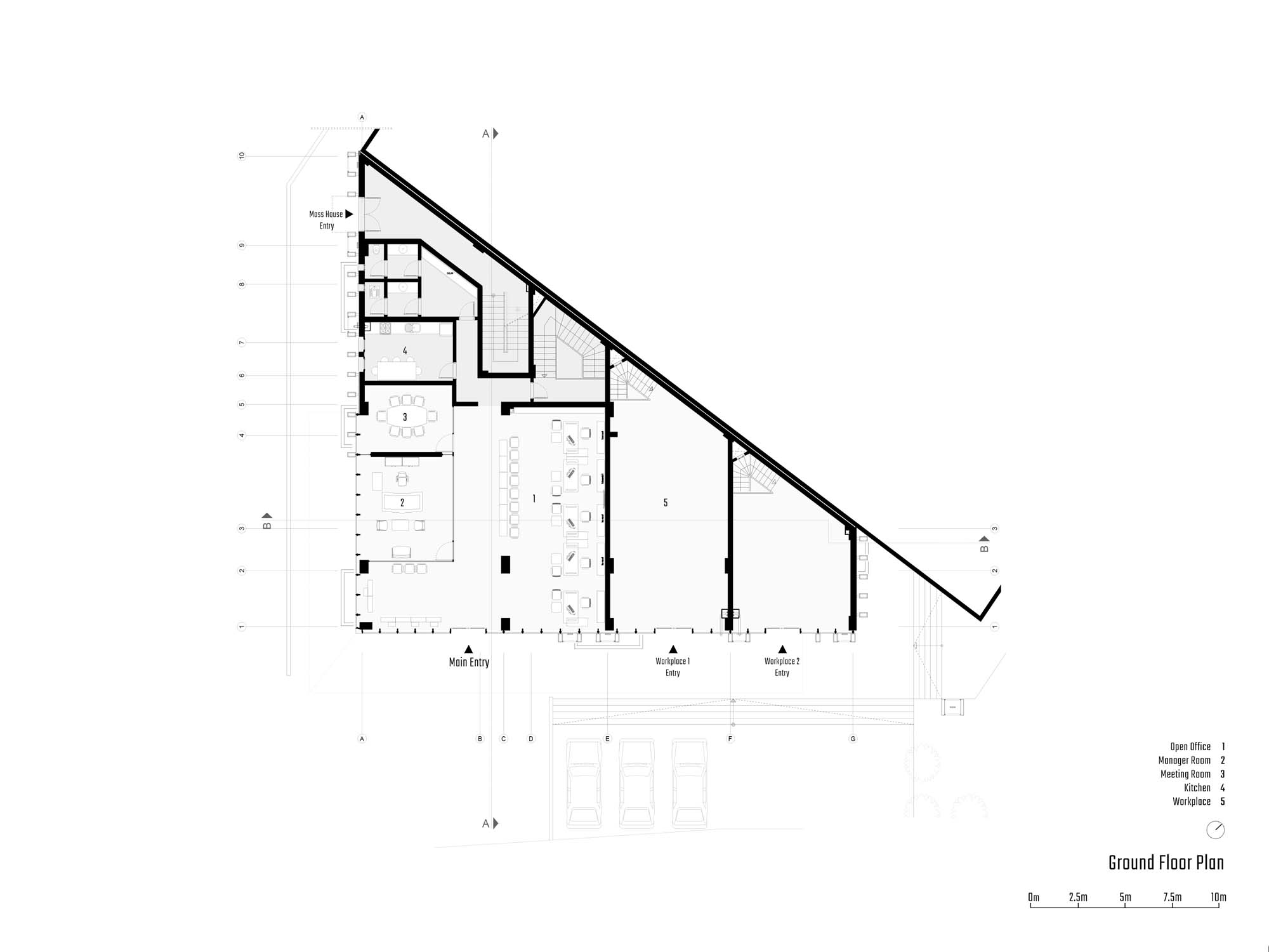
1288 Sayılı Honaz Tarım Kredi Kooperatifi Yönetim ve Depo Binası
Project Location: Denizli, Honaz
Project Office: TAFF Mimarlık
Project Type: Offices, Depot
Proje Tipi Grubu: Endüstriyel
Tasarım Ekibi: Saliha Noyin Yavuz, Ezgi San
Employer: TARIM KREDİ KOOPERATİFİ
Yardımcı: İsmail Hakkı Turhan
Ana Yüklenici: Dörtyüz İnşaat
Projcet Manager: Saliha Noyin Yavuz, Ezgi San
Structural Project: Görgüç Mühendislik
Mechanical Project: ÖFY Mühendislik
Electrical Project: AE Mühendislik
Plumbing Project: ÖFY Mühendislik
Çelik Projesi: Şengün Mühendislik
Photography: Alperen Gülgönül
Project Start Date: 2016
Project End Date: 2016
Construction Start Date: 2017
Construction End Date: 2018
Building Plot Area: 2.678 m2
Total Construction Area: 2.008 m2