10/17
Paylaş
Resmi Orjinal Boyutunda Göster
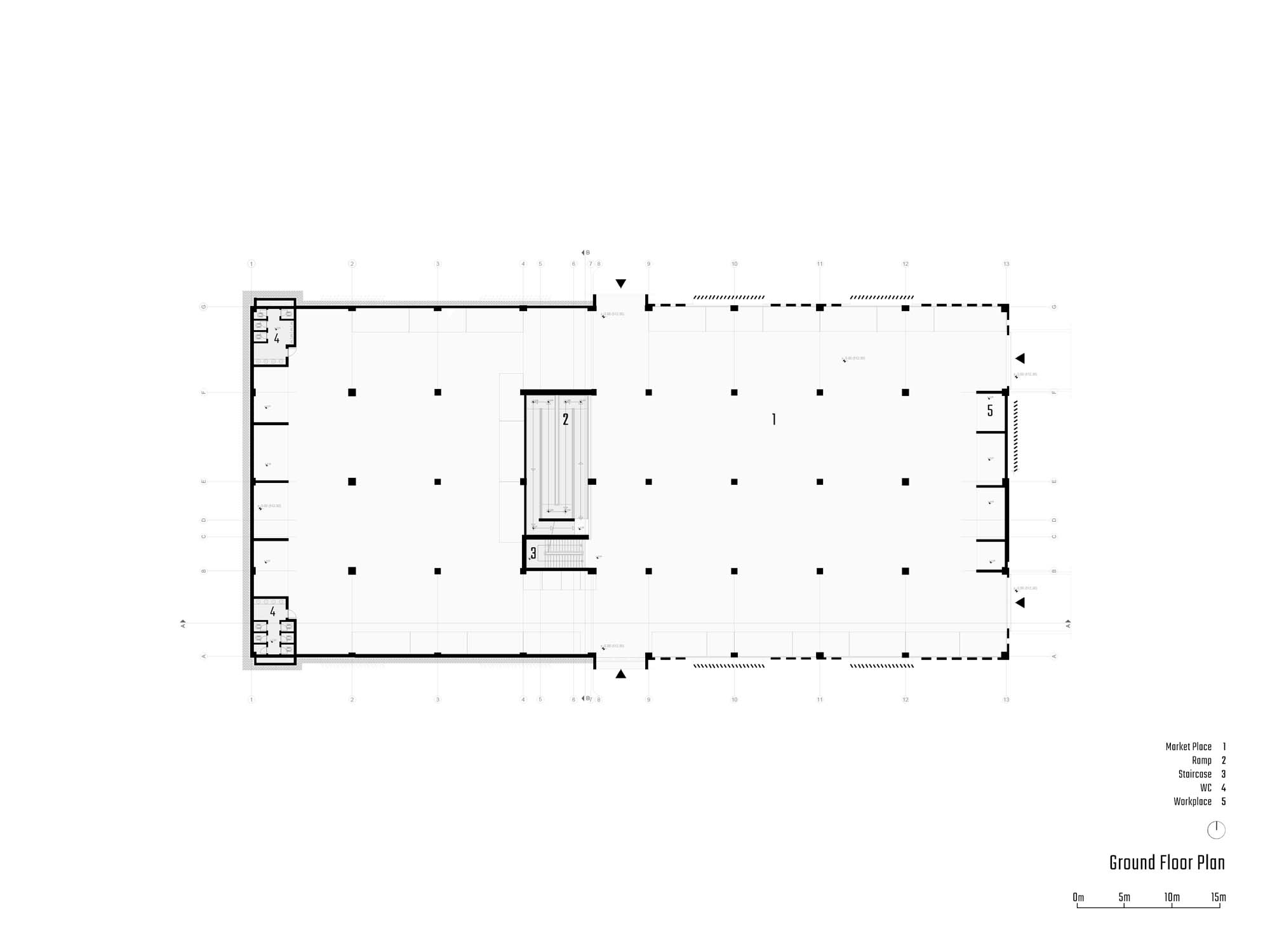
Barbaros Kapalı Pazaryeri
Proje Yeri: Denizli, Merkezefendi
Proje Ofisi: TAFF Mimarlık
Tasarım Ekibi: Saliha Noyin Yavuz, Ezgi San
İşveren: Merkezefendi Belediyesi
Yardımcı: İsmail Hakkı Turhan
Ana Yüklenici: Güney Ege Kalkınma Ajansı
Statik Projesi: Merkezefendi Belediyesi Proje Birimi
Mekanik Projesi: Merkezefendi Belediyesi Proje Birimi
Elektrik Projesi: Merkezefendi Belediyesi Proje Birimi
Tesisat Projesi: Merkezefendi Belediyesi Proje Birimi
Fotoğraf: Alperen Gülgönül
Proje Başlangıç Yılı: 2018
Proje Bitiş Yılı: 2018
İnşaat Başlangıç Yılı: 2018
İnşaat Bitiş Yılı: 2019
Arsa Alanı: 7.767 m2