17/17
Paylaş
Resmi Orjinal Boyutunda Göster
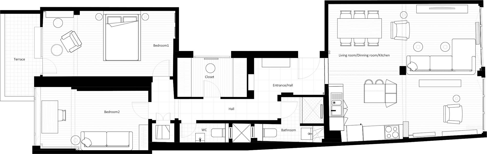
Modada bir Ev
Proje Yeri: Kadıköy, İstanbul
Proje Ofisi: Selkan Erçel Design Studio
Proje Tipi: Apartman
Proje Tipi Grubu: Konut
Tasarım Ekibi: Selkan Solmaz Erçel
İşveren: Ali Anıl Erçel
Ana Yüklenici: Selkan Solmaz Erçel
Proje Başlangıç Yılı: 2020
Proje Bitiş Yılı: 2020
İnşaat Başlangıç Yılı: 2020
İnşaat Bitiş Yılı: 2020
Toplam İnşaat Alanı: 99 m2