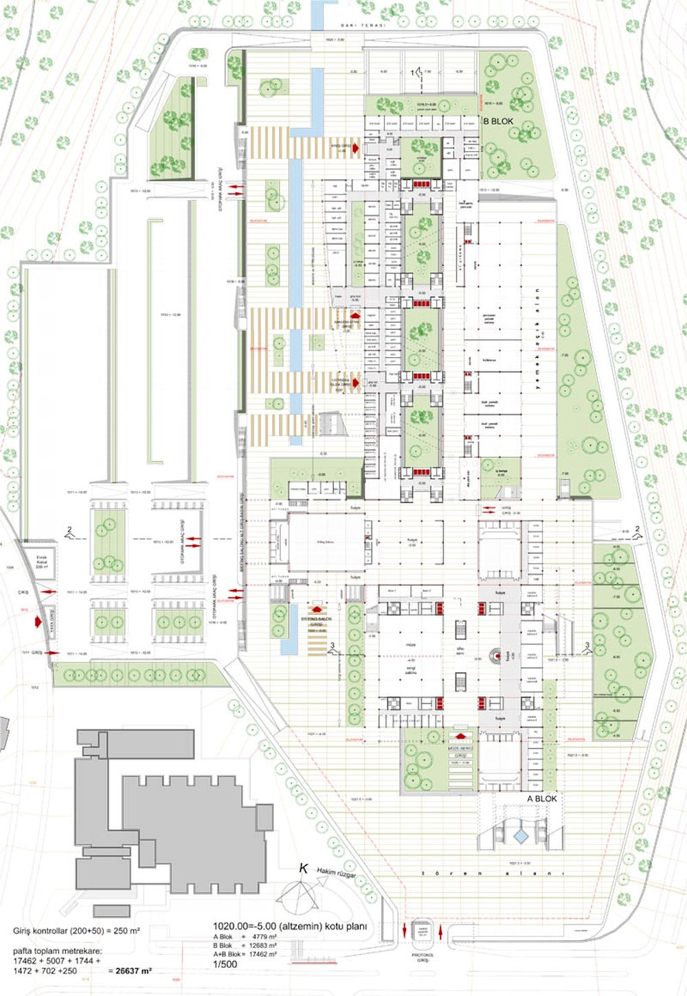
1020 Planı
6/29
Paylaş
Resmi Orjinal Boyutunda Göster
Dışişleri Bakanlığı Yerleşkesi Mimari Proje Yarışması, 6. Mansiyon
Proje Yeri: Ankara
Proje Tipi: Kentsel Tasarım, Kamu Yönetim Binası
Proje Tipi Grubu: 6. Mansiyon
Tasarım Ekibi: Nesrin Yatman
Yardımcı: Mehmet Pınarevli, Ayşegül Kök, Evren Yatman, Nihan Kocaoğlu, Aslıhan Kocaman, Cenk Özkan, Serkan Seçgin, Orhan Tamer