43/44
Paylaş
Resmi Orjinal Boyutunda Göster
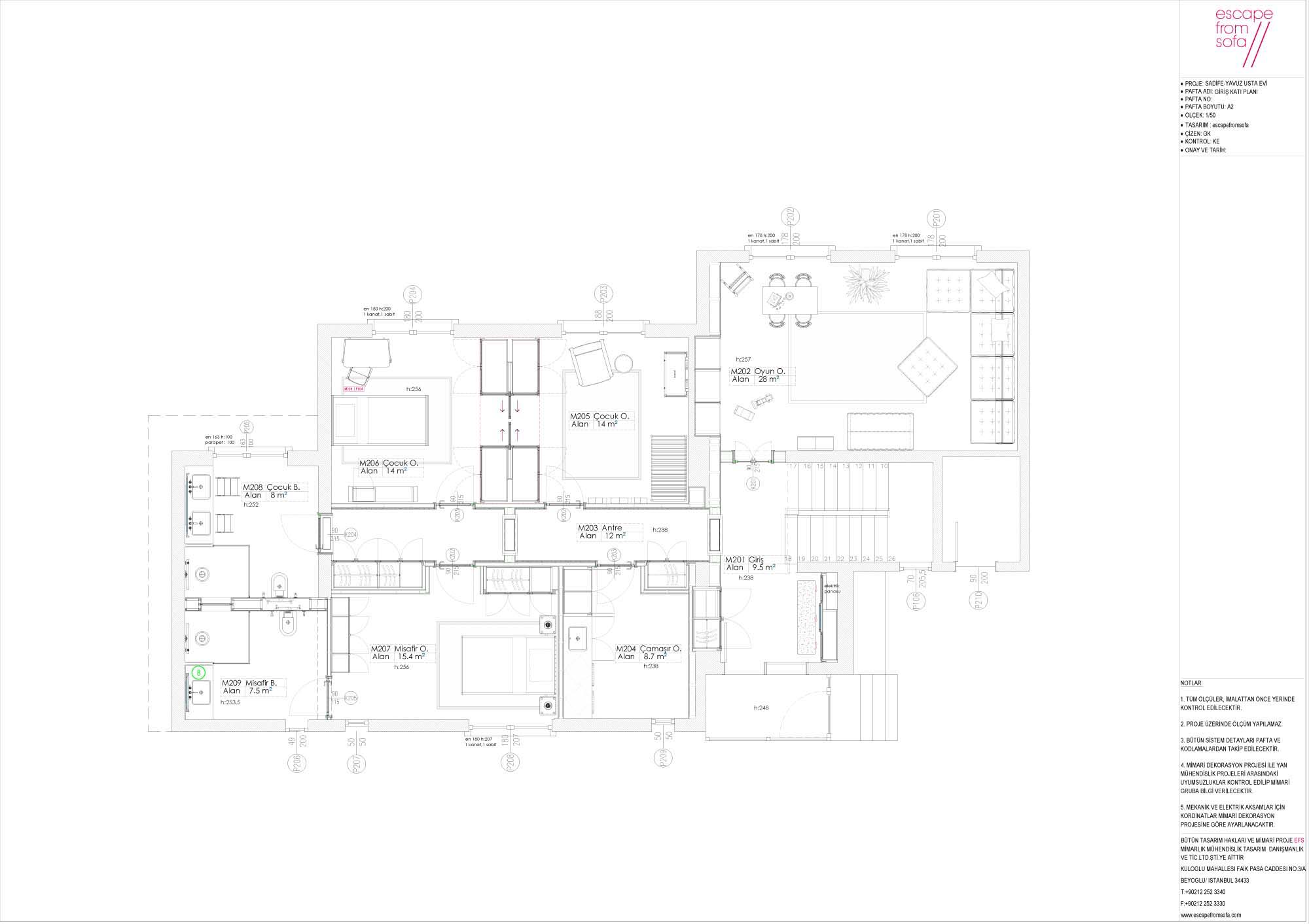
Zekeriyaköy Ev
Project Location: Sarıyer, İstanbul
Project Office: Escapefromsofa
Project Type: Single House
Proje Tipi Grubu: Konut
Tasarım Ekibi: Mahmut Kefeli, İrem Başer, Kerem Erçin
Ana Yüklenici: Escapefromsofa
Photography: İbrahim Özbunar
Project Start Date: 2019
Project End Date: 2019
Construction Start Date: 2019
Construction End Date: 2019
Total Construction Area: 500 m2