14/15
Paylaş
Resmi Orjinal Boyutunda Göster
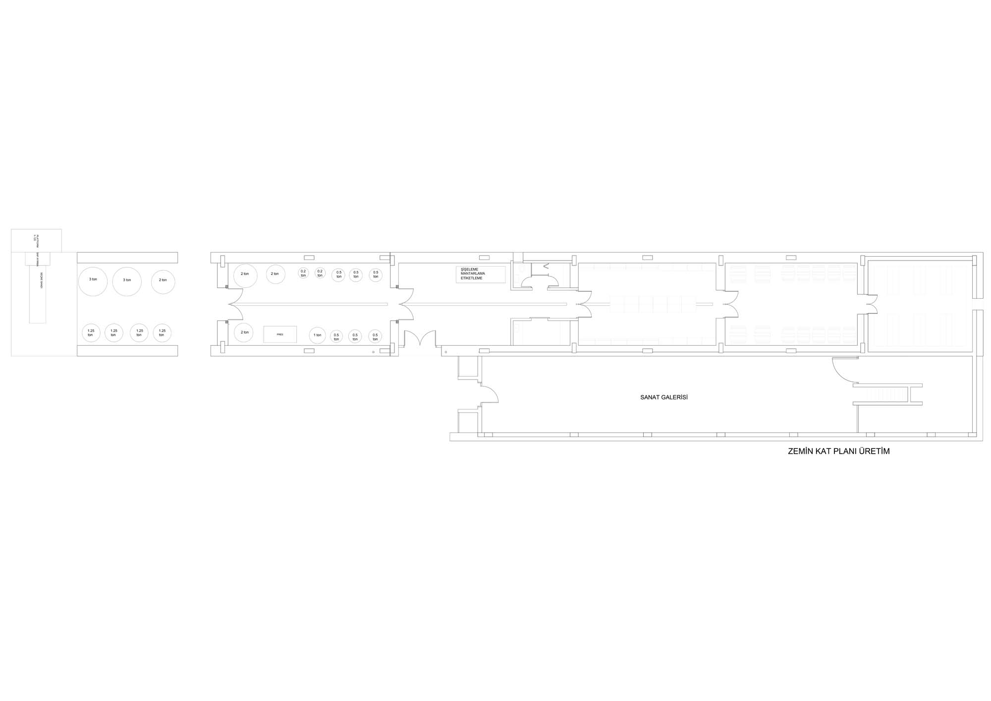
İkidenizarası Şarapçılık
Proje Yeri: Urla, İzmir
Proje Ofisi: Serhat Akbay Mimarlık
Proje Tipi: Şarap Evi / Şaraphane
Proje Tipi Grubu: Ticari
Tasarım Ekibi: Serhat Akbay
İşveren: Nevzat Sayın, Sait Ada, İbrahim Dilan, Serhat Akbay
Yardımcı: Azize Andıç Tosun
Ana Yüklenici: Serhat Akbay
Statik Projesi: Urla Mimarlık
Mekanik Projesi: Sabancı İnşaat
Elektrik Projesi: Sgm Elektrik
Fotoğraf: Zeren + Mehmet Yasa Photography
Proje Başlangıç Yılı: 2017
Proje Bitiş Yılı: 2018
İnşaat Başlangıç Yılı: 2018
İnşaat Bitiş Yılı: 2021
Arsa Alanı: 7.264 m²
Toplam İnşaat Alanı: 363 m2