7/12
Paylaş
Resmi Orjinal Boyutunda Göster
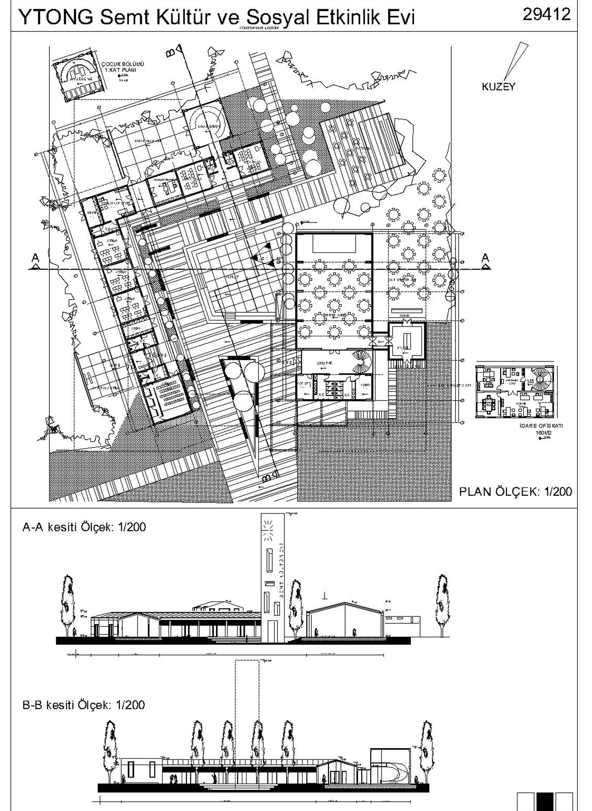
Katılımcı Kültür ve Sosyal Etkinlikler Evi Ytong Yarışması
Proje Tipi: Kültür Merkezi
Proje Tipi Grubu: Katılımcı
Tasarım Ekibi: Bora Soykut, Emine Soykut, Dilara Yıldızhan, Anar Mustafayev