8/24
Paylaş
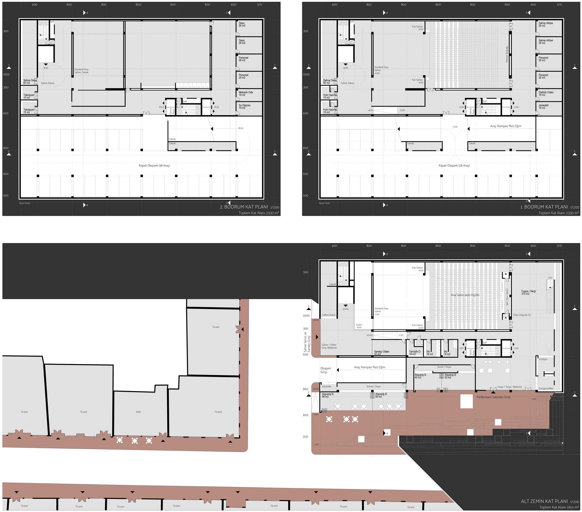
Resmi Orjinal Boyutunda Göster
1. Ödül Ulus Modern Kültür ve Sanat Merkezi Ulusal Mimarlık Yarışması
Proje Yeri: Ankara
Proje Ofisi: Nous Architecture | Urban Design
Proje Tipi: Kültür Merkezi
Proje Tipi Grubu: 1. Ödül
Tasarım Ekibi: Sıddık Güvendi, Cihan Sevindik, Niyazi Parlar, Güney Onur Kütük, Namık Onmuş
Danışman: Oya Eskin Güvendi, Senem Müştak Sevindik, Kemal Suner, Doğukan Koç
Yardımcı: Abdullah Kahraman, Ahmet Baylan, Elif Nur Uluskan, Emirhan Ayata, Selen Mirioğlu