6/14
Paylaş
Resmi Orjinal Boyutunda Göster
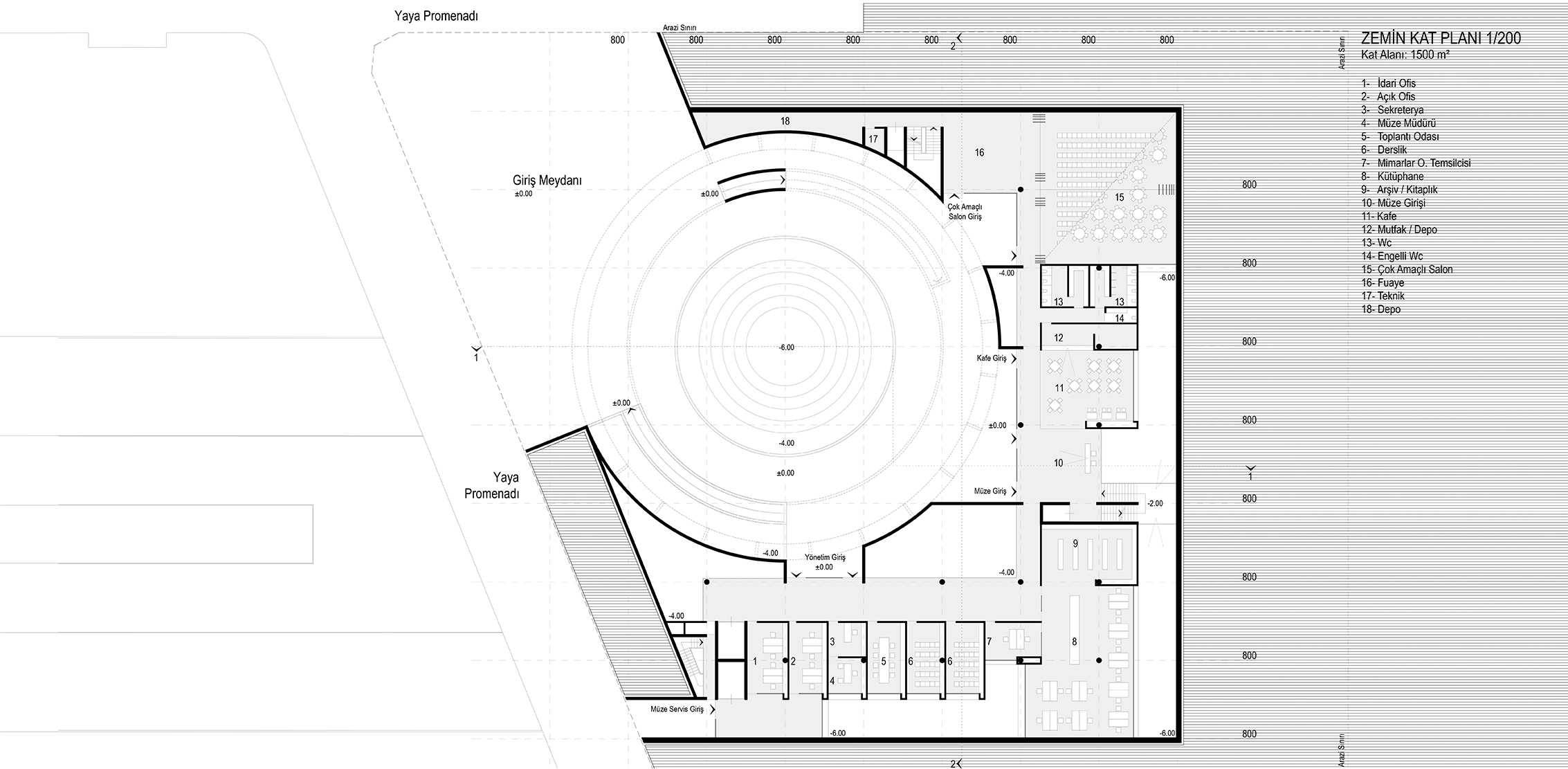
2. Mansiyon Mimar Sinan Müzesi ve Mimarlık Merkezi Ulusal Mimari Proje Yarışması
Proje Yeri: Kayseri
Proje Ofisi: Nous Architecture | Urban Design
Proje Tipi: Müze
Proje Tipi Grubu: 2. Mansiyon
Tasarım Ekibi: Sıddık Güvendi, Cihan Sevindik
Danışman: Oya Eskin Güvendi, Senem Müştak Sevindik
Yardımcı: Abdullah Kahraman, Gülcan Coşkun, Elif Sakallı
Statik Projesi: Mehmet Ali Yılmaz
Mekanik Projesi: Sedat Akaryıldız
Elektrik Projesi: Cihan Onmuş