5/14
Paylaş
Resmi Orjinal Boyutunda Göster
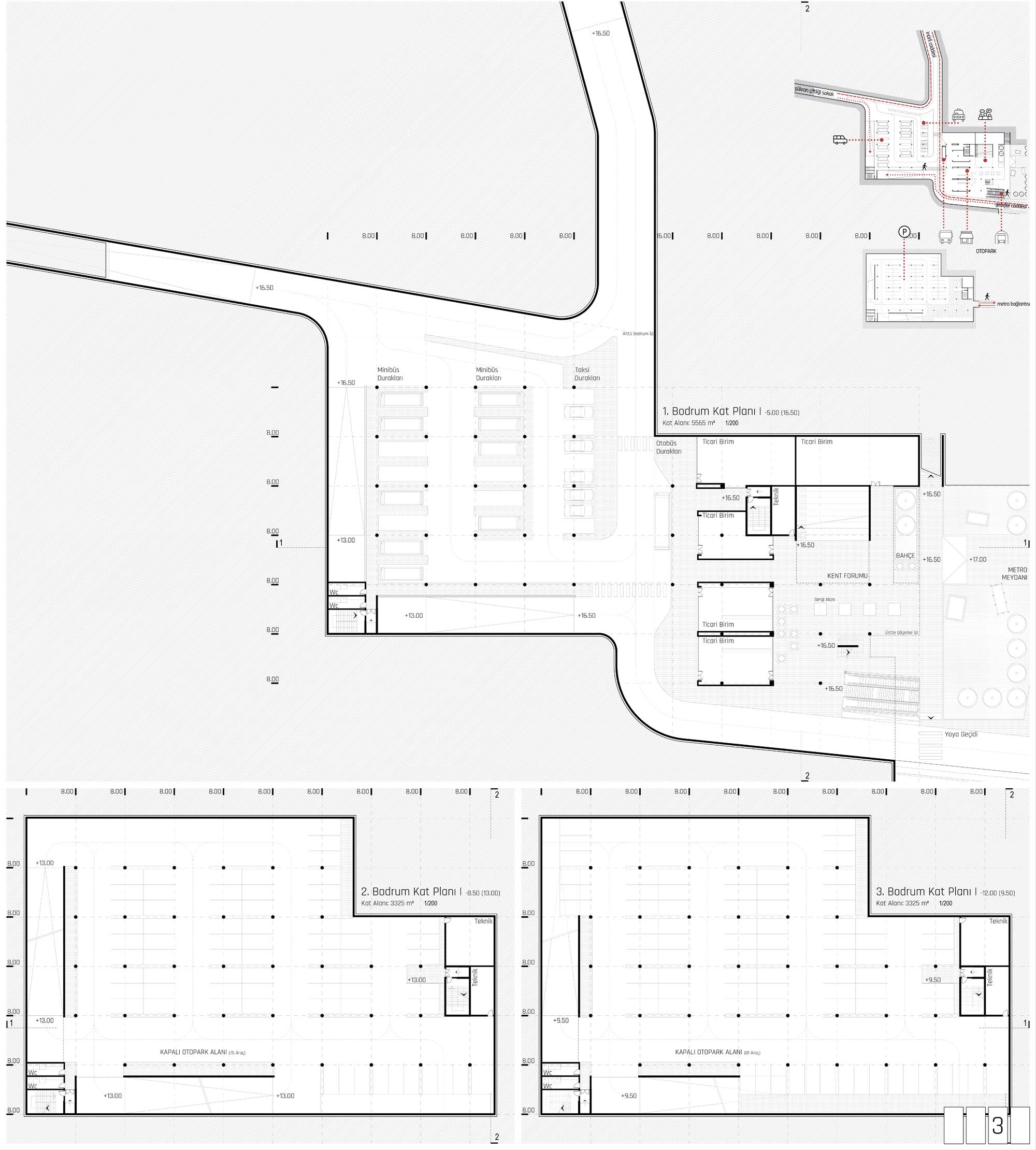
2. Mansiyon Bakırköy Cumhuriyet (Özgürlük) Meydanı ve Yakın Çevresi Kentsel Tasarım Proje Yarışması
Project Location: Bakırköy, İstanbul
Project Type: Kentsel Tasarım Projesi
Proje Tipi Grubu: 2. Mansiyon
Tasarım Ekibi: Sıddık Güvendi, Cihan Sevindik
Consultant: Oya Eskin Güvendi, Senem Müştak Sevindik, Eda Ekim Yılmaz, Özge Müberra Akyüz
Yardımcı: Kerem Karacaoğlu, Rümeysa Tıpırdamaz, Hatice Sena Savaş