13/18
Paylaş
Resmi Orjinal Boyutunda Göster
Lonk
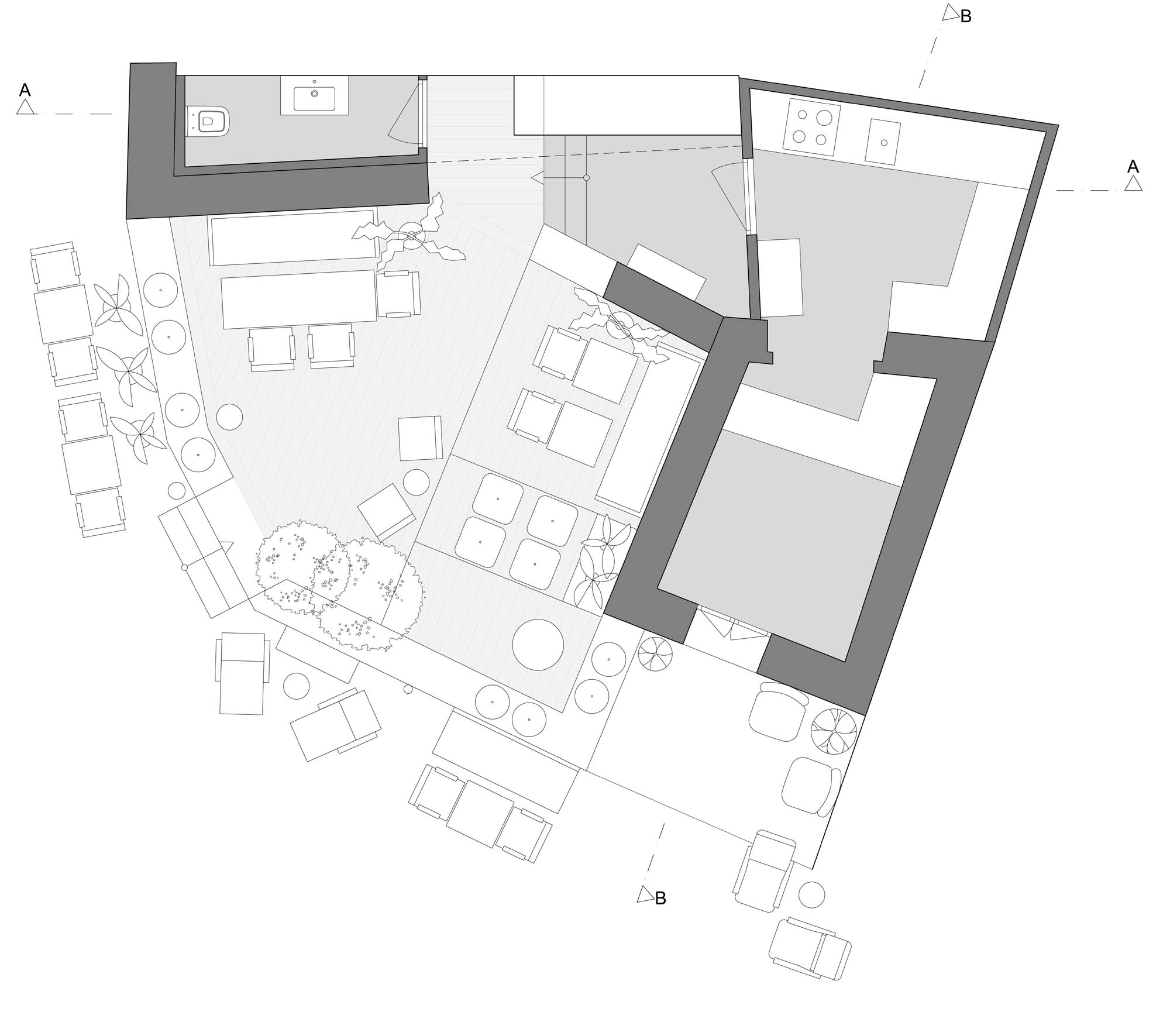
Proje Yeri: Çeşme, İzmir
Proje Ofisi: Amer Mimarlık
Proje Tipi: Restoran / Kafe / Bar
Proje Tipi Grubu: Ticari
Tasarım Ekibi: Kağan Kılıç
İşveren: Kağan Kılıç
Danışman: Semih Kılınç, Seda Kılıç, Umay Kaboğlu
Yardımcı: Eda Uğur
Ana Yüklenici: Amer Mimarlık
Aydınlatma Projesi: Bylux Aydınlatma
Mekanik Projesi: MKS
Elektrik Projesi: Onmuş Elektrik
Proje Başlangıç Yılı: 2021
Proje Bitiş Yılı: 2021
İnşaat Başlangıç Yılı: 2021
İnşaat Bitiş Yılı: 2021
Arsa Alanı: 71 m²
Toplam İnşaat Alanı: 31 m2