5/6
Paylaş
Resmi Orjinal Boyutunda Göster
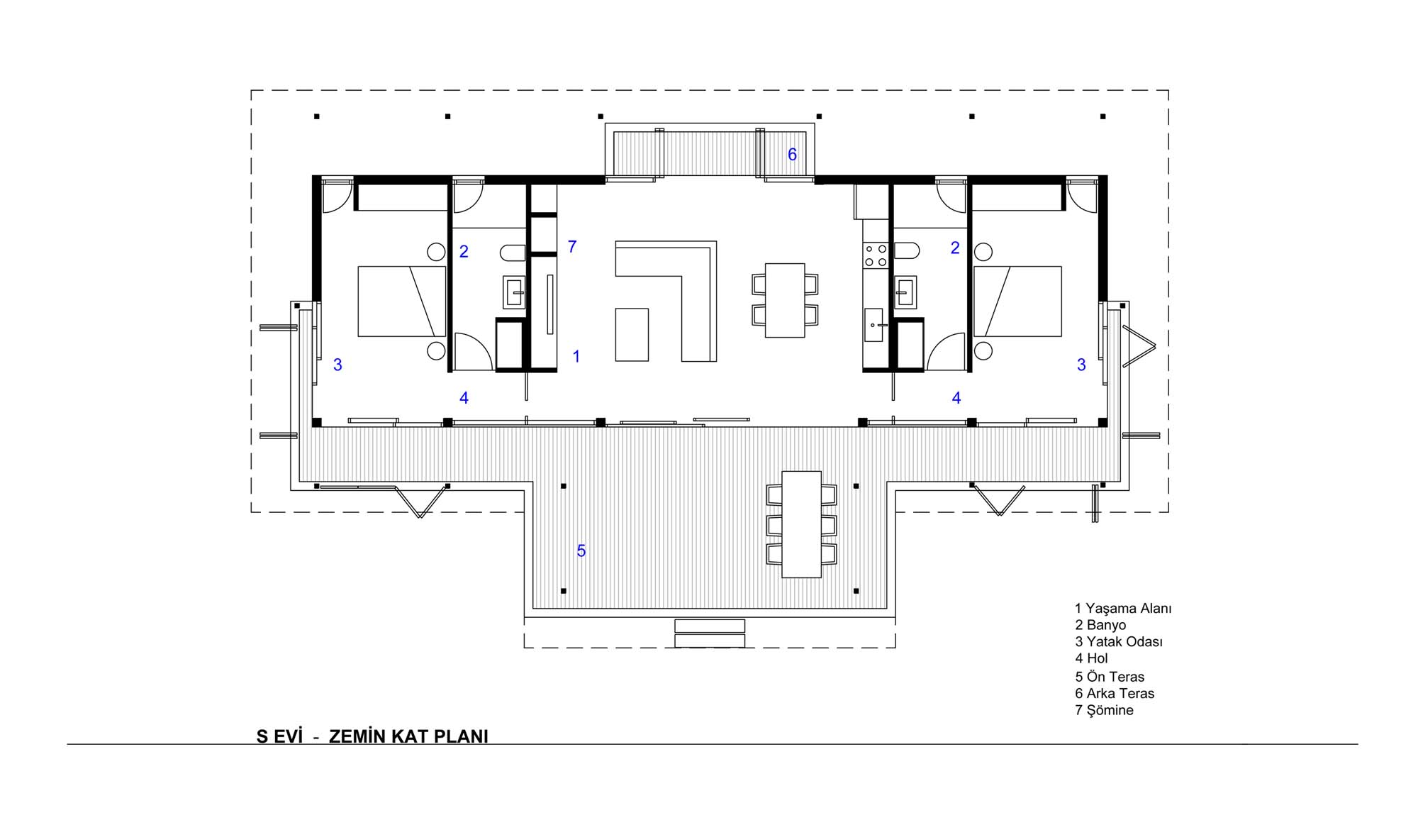
S Evi
Proje Yeri: Bodrum, Muğla
Proje Ofisi: Emre Çetinel Mimarlık
Proje Tipi: Tek Ev / Villa
Proje Tipi Grubu: Konut
Tasarım Ekibi: Emre Çetinel
İşveren: Nevsa İnşaat
Ana Yüklenici: Nevsa İnşaat
Proje Başlangıç Yılı: 2021
Proje Bitiş Yılı: 2021
Arsa Alanı: 624 m2
Toplam İnşaat Alanı: 195 m²