5/6
Paylaş
Resmi Orjinal Boyutunda Göster
Çeşme Villa
Proje Yeri: Çeşme, İzmir
Proje Ofisi: Not Mimarlık
Proje Tipi: Tek Ev / Villa
Tasarım Ekibi: Serdar Uslubaş, Merih Feza Yıldırım
İşveren: Serdar Baysal
Yardımcı: Gülten Nur Arslan
Proje Başlangıç Yılı: 2012
Arsa Alanı: 2000m²
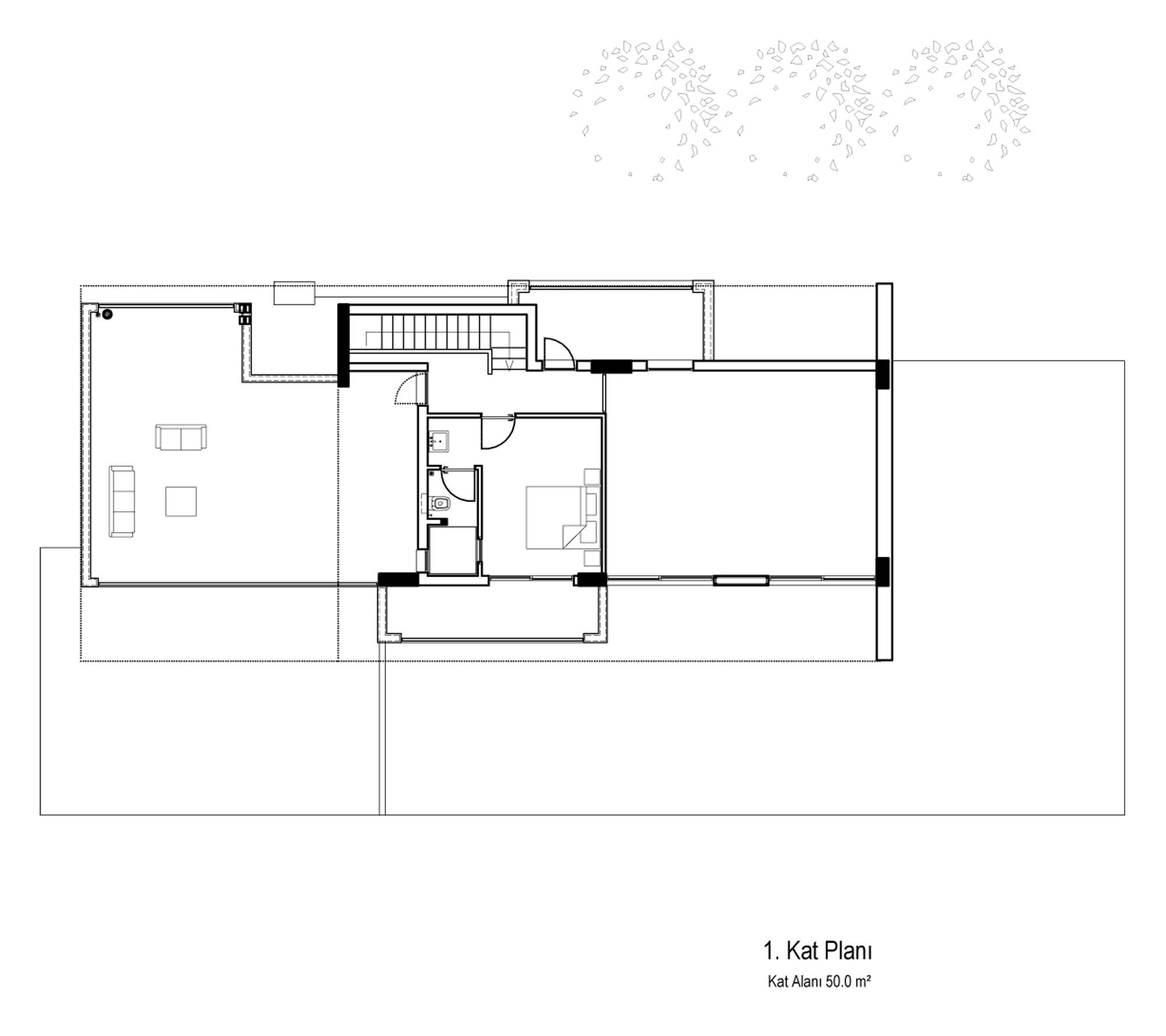
Toplam İnşaat Alanı: 350m²