8/10
Paylaş
Resmi Orjinal Boyutunda Göster
The Small
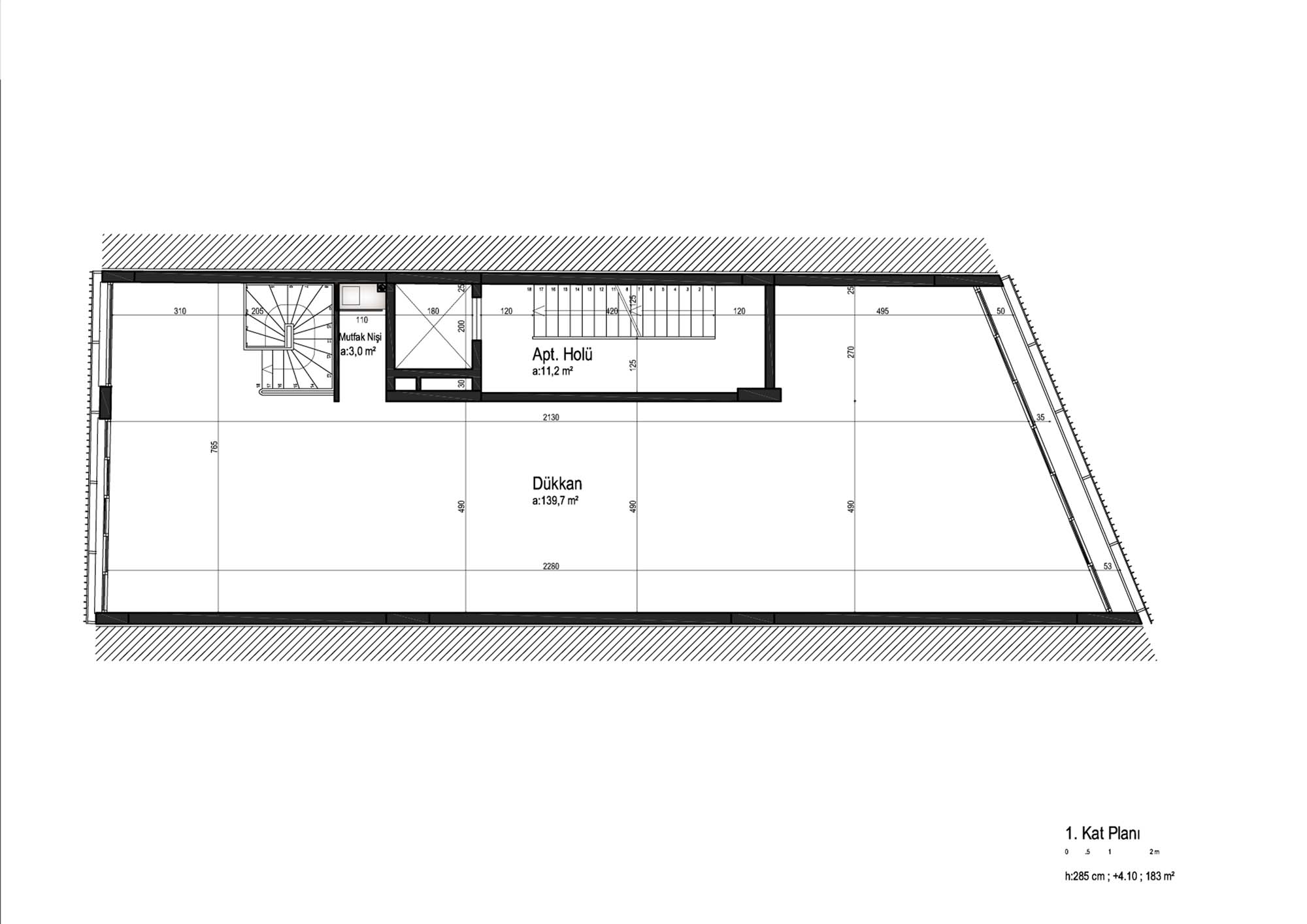
Proje Yeri: Karşıyaka, İzmir
Proje Ofisi: Not Mimarlık
Proje Tipi: Apartman
Proje Tipi Grubu: Konut, Ticari
Tasarım Ekibi: Merih Feza Yıldırım, Serdar Uslubaş
İşveren: Mürüvet Tiryaki, Fatma Coşgun
Statik Projesi: Yüksel Yapı
Mekanik Projesi: Mestan Hakan Özer Mühendislik
Elektrik Projesi: SGS Mühendislik
Proje Başlangıç Yılı: 2014
Toplam İnşaat Alanı: 792 m2