14/18
Paylaş
Resmi Orjinal Boyutunda Göster
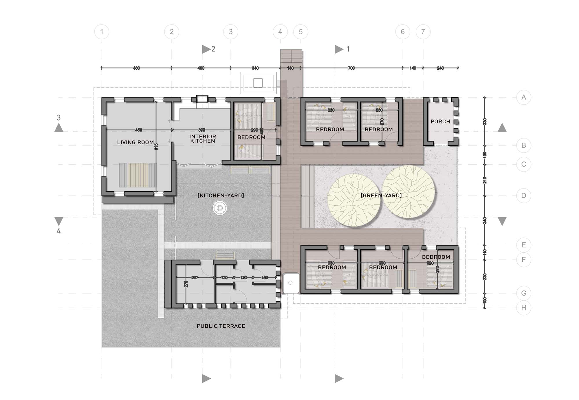
A Home for the Jorejick Family
Proje Yeri: Tanzanya
Proje Tipi: Tek Ev / Villa
Proje Tipi Grubu: Konut
Tasarım Ekibi: Hacer Bozkurt, Kamile Öztürk Kösenciğ
Proje Başlangıç Yılı: 2019
Proje Bitiş Yılı: 2019
Arsa Alanı: 365 m2