16/17
Paylaş
Resmi Orjinal Boyutunda Göster
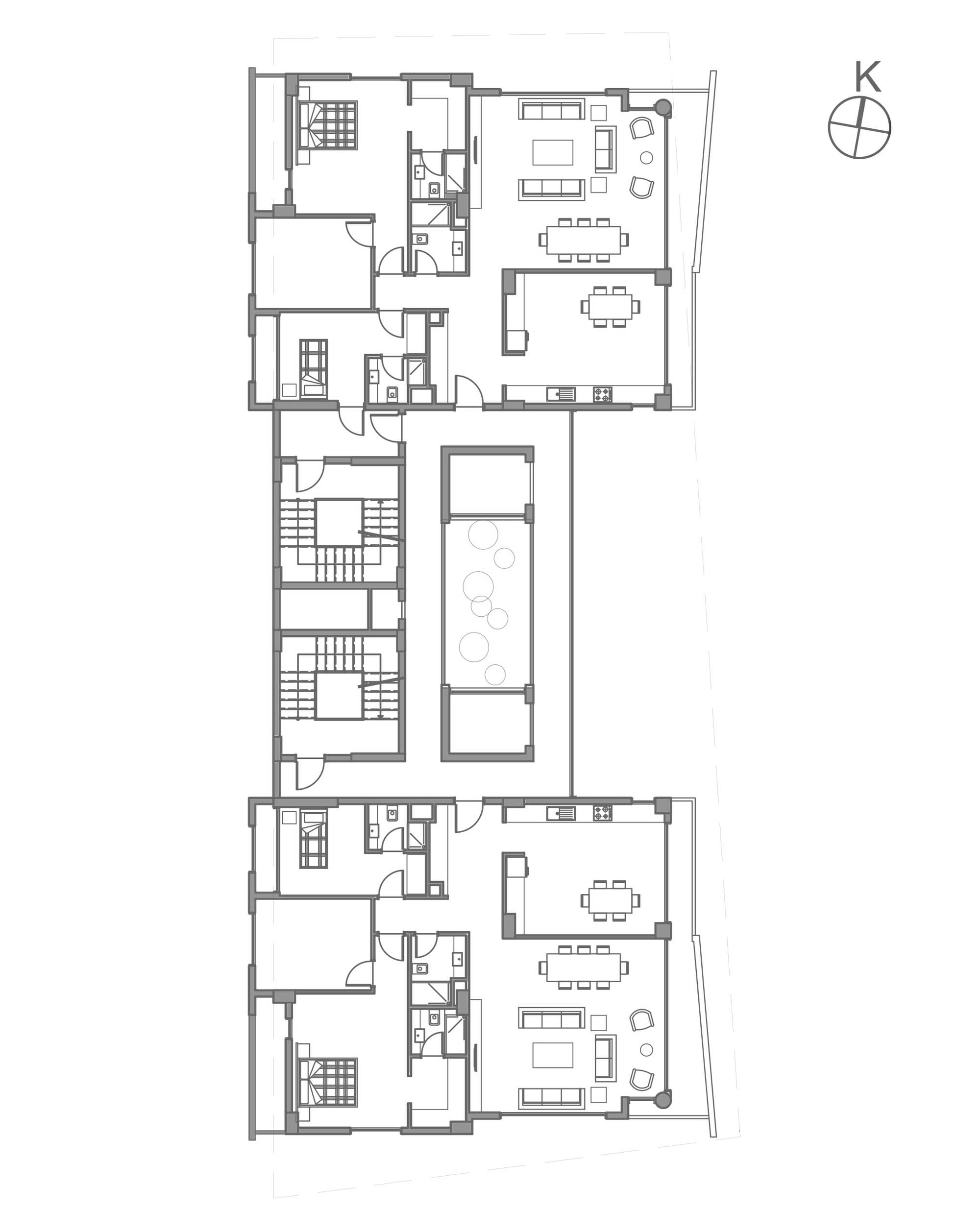
Hüryap Vitrin Ziyapaşa
Proje Yeri: Seyhan, Adana
Proje Ofisi: Eren Tümer Mimarlık Ofisi [ETMO]
Proje Tipi: Apartman
Proje Tipi Grubu: Konut
Tasarım Ekibi: Eren Tümer, Ece Sultan Karacık
İşveren: Hüryap İnşaat, Uğur Ülgez
Yardımcı: Zafer Tarık Taner, Ceyda Gürsel
Ana Yüklenici: Hüryap İnşaat
Statik Projesi: Ekince Mühendislik, Eşref Özbek
Mekanik Projesi: Önder Koçak
Elektrik Projesi: Ahmet Akkaya
Tesisat Projesi: Önder Koçak
Yangın Tahliye Projesi: Önder Koçak
Fotoğraf: Eren Tümer, Ece Sultan Karacık
Proje Başlangıç Yılı: 2017
Proje Bitiş Yılı: 2017
İnşaat Başlangıç Yılı: 2017
İnşaat Bitiş Yılı: 2020
Arsa Alanı: 1.368 m2
Toplam İnşaat Alanı: 3.284 m2