31/31
Paylaş
Resmi Orjinal Boyutunda Göster
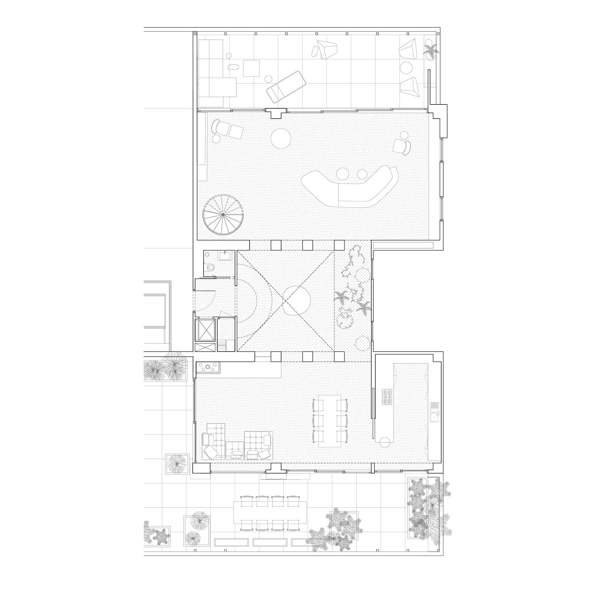
PH7800
Project Location: İzmir, Çeşme
Project Office: Miskavi Architecture Studio (MAS)
Project Type: Single House
Proje Tipi Grubu: Konut
Tasarım Ekibi: Kerim Miskavi, Betül Ay, Ayşecan Uğur
Photography: Egemen Karakaya
Construction End Date: 2021
Total Construction Area: 700 m2