62/68
Paylaş
Resmi Orjinal Boyutunda Göster
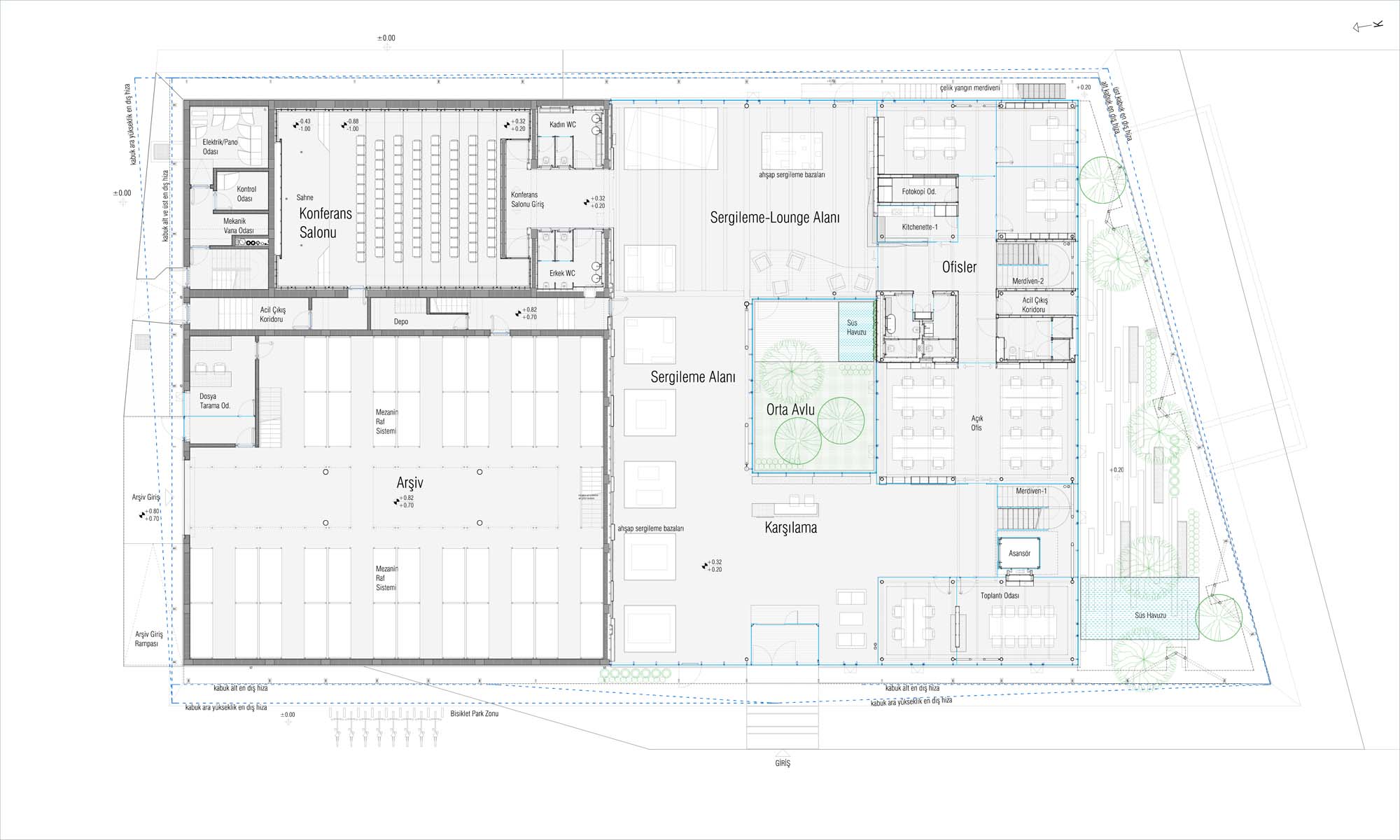
FNN Sürdürülebilirlik Merkezi
Proje Yeri: Ceyhan, Adana
Proje Ofisi: Acararch
Proje Tipi: Ofis, Müze
Proje Tipi Grubu: Ticari
Tasarım Ekibi: Emre Açar, Yunus Özdemir, Çağrı Helvacıoğlu Aydoğu
İşveren: Tekfen İnşaat
Yardımcı: Ece Kalaycıoğlu, Ahmet Faruk Akdeniz, Beren Eren
Ana Yüklenici: Yoo Mimarlık
Statik Projesi: İntaç Mühendislik
Mekanik Projesi: Metasarım Proje Mühendislik
Elektrik Projesi: Zenith Proje Mühendislik
Çelik Projesi: İntaç Mühendislik
Yangın Tahliye Projesi: YAN-MA-DAN
Fotoğraf: İbrahim Özbunar
Mimari Mesleki Kontrollük: Acararch
Proje Başlangıç Yılı: 2017
Proje Bitiş Yılı: 2019
İnşaat Başlangıç Yılı: 2019
İnşaat Bitiş Yılı: 2020
Arsa Alanı: 58.882 m2
Toplam İnşaat Alanı: 1.871 m2