12/14
Paylaş
Resmi Orjinal Boyutunda Göster
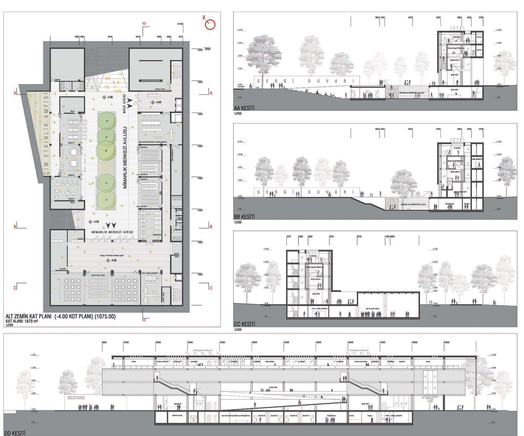
1. Mansiyon, Mimar Sinan Müzesi ve Mimarlık Merkezi Ulusal Mimari Proje Yarışması
Proje Yeri: Kayseri
Proje Ofisi: Erkan Erdoğan Mimarlık
Proje Tipi: Müze
Proje Tipi Grubu: 1. Mansiyon
Tasarım Ekibi: Erkan Erdoğan
Danışman: Emine Pınar, Salih Sipahioğlu