16/21
Paylaş
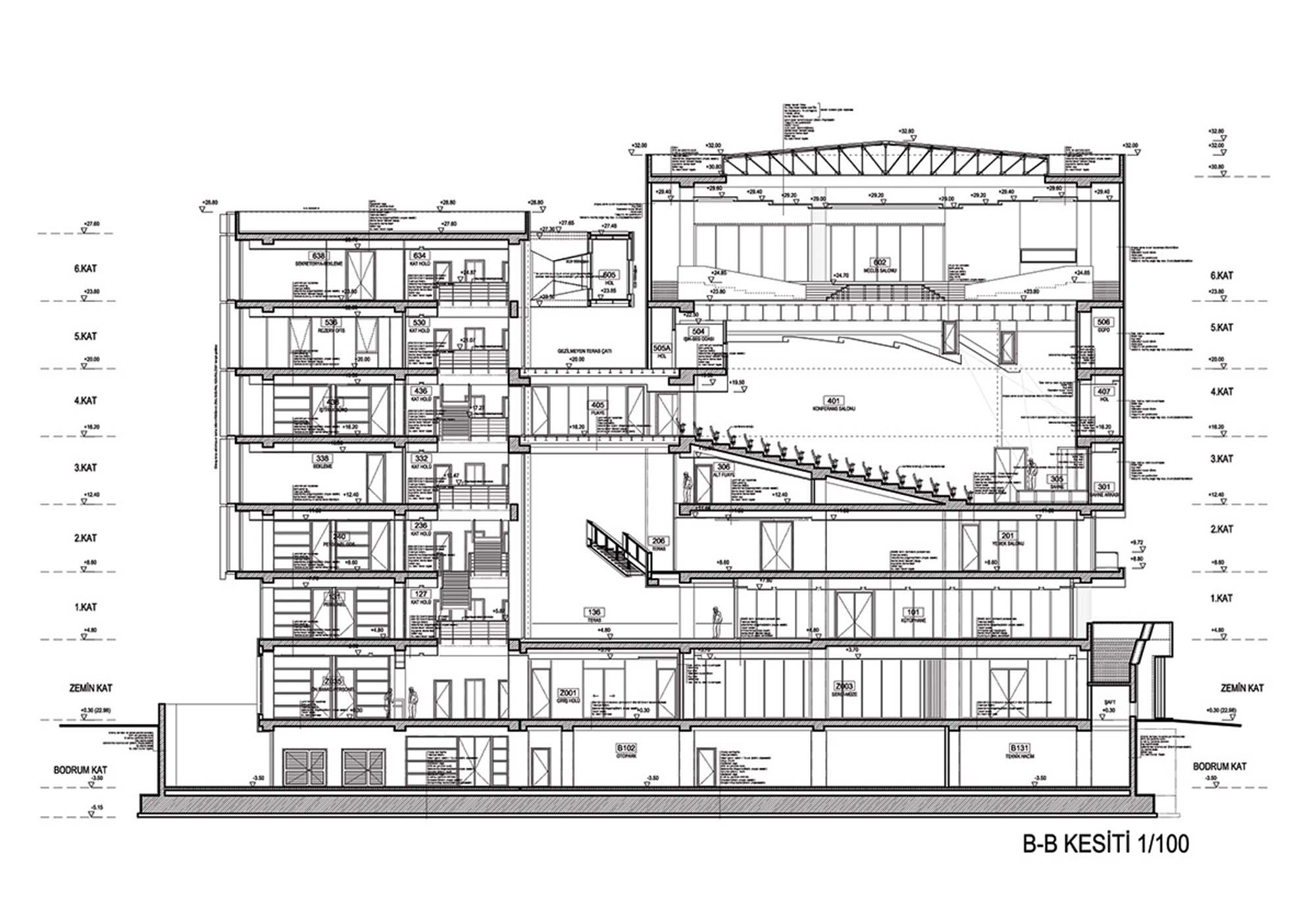
Resmi Orjinal Boyutunda Göster
1. Ödül, Adana Ticaret Odası Hizmet Binası Mimari Proje Yarışması
Proje Yeri: Adana
Proje Ofisi: Erkan Erdoğan Mimarlık
Proje Tipi Grubu: 1. Ödül
Tasarım Ekibi: Erkan Erdoğan
Danışman: Yüksel Konkan, Fuzuli Topal, Kemal Güravşar
Yardımcı: Mustafa Yıldırım, Okan Türk
Peyzaj Mimarlığı: Bahar Erdem Peyzaj
Statik Projesi: Prekon Mühendislik
Mekanik Projesi: ATABAR Mühendislik
Elektrik Projesi: ATABAR Mühendislik
Proje Başlangıç Yılı: 2014
Proje Bitiş Yılı: 2016
Arsa Alanı: 3.860 m2
Toplam İnşaat Alanı: 14.500 m²